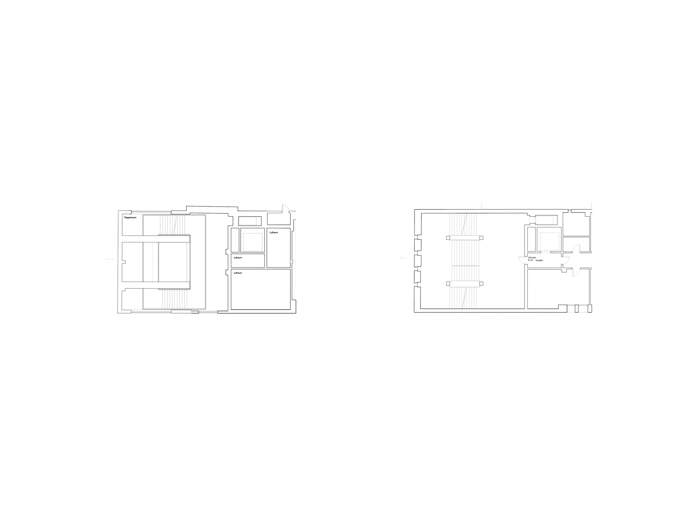
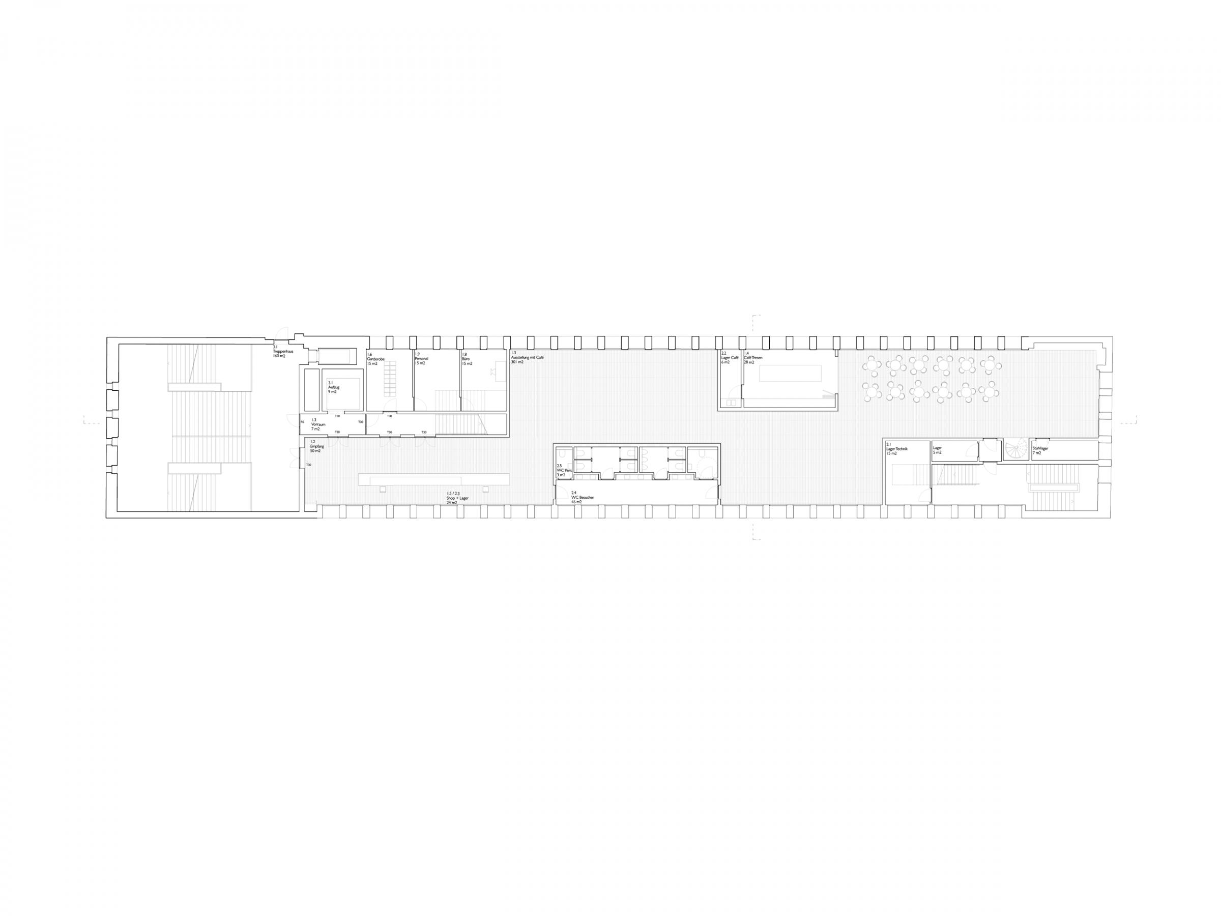
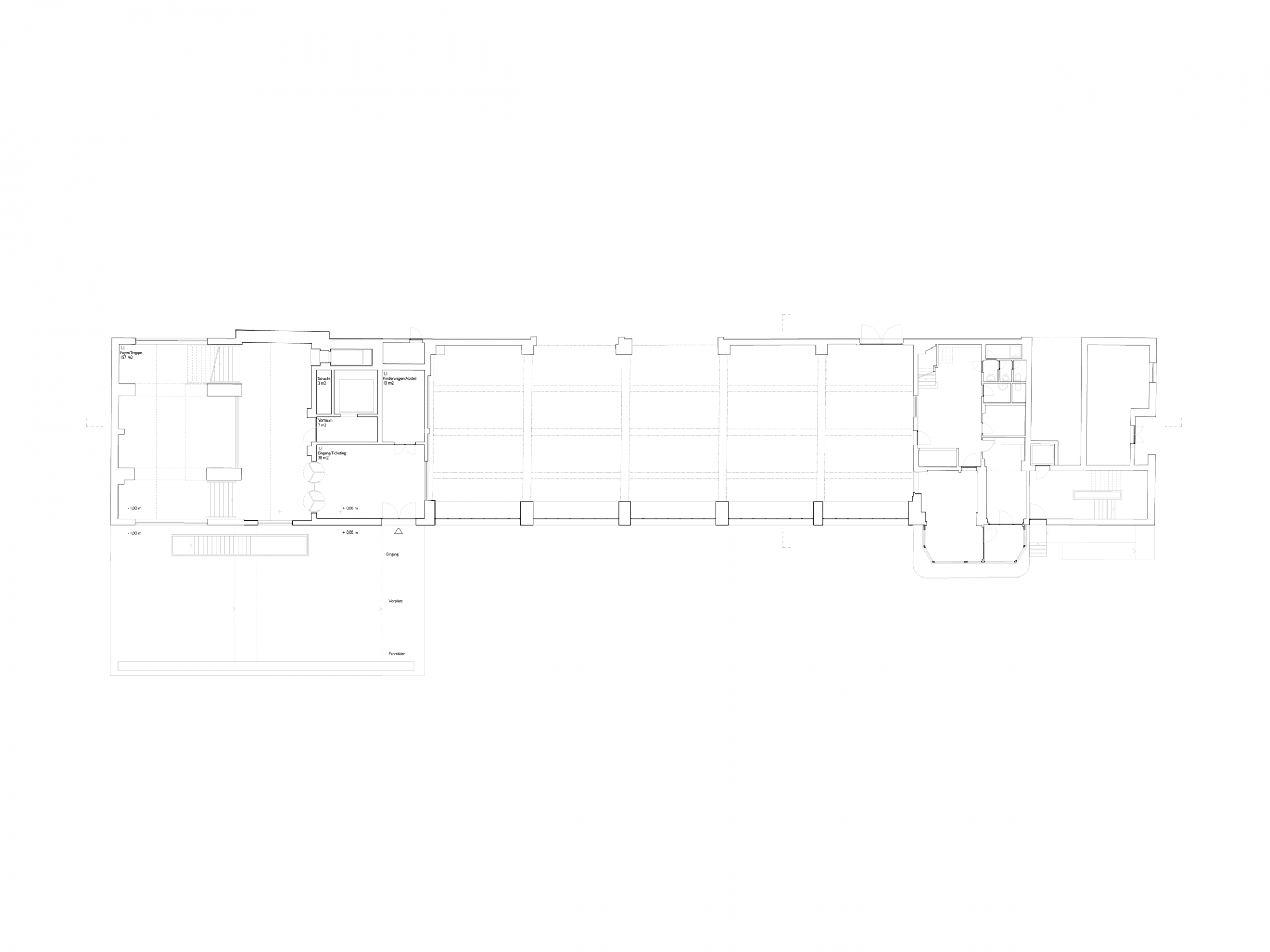
Visitor center Tempelhof Airport
Berlin, Germany
Competition 2016, 2nd Prize
Client:
Land Berlin
Architect:
Bruno Fioretti Marquez
Competition Team:
Sergey Kolesov, Simon Palme, Yolanda Sanchez-Camacho
Structural engineering: IFB Frohloff Staffa Kühl Ecker, Berlin, Germany
Building services: Building Applications Ingenieure Kasche Lußky Dr. Krühne, Berlin, Germany
Visualization:
Ponnie Images, Aachen, Germany