University Library Siegen

Read More Read Less
1/14
  • Site plan
  • Sketch urban situation
  • Isometric volume and interior space
  • Sketch reading room
  • Sketch reading room
  • Sketch reading room
  • Sketch construction
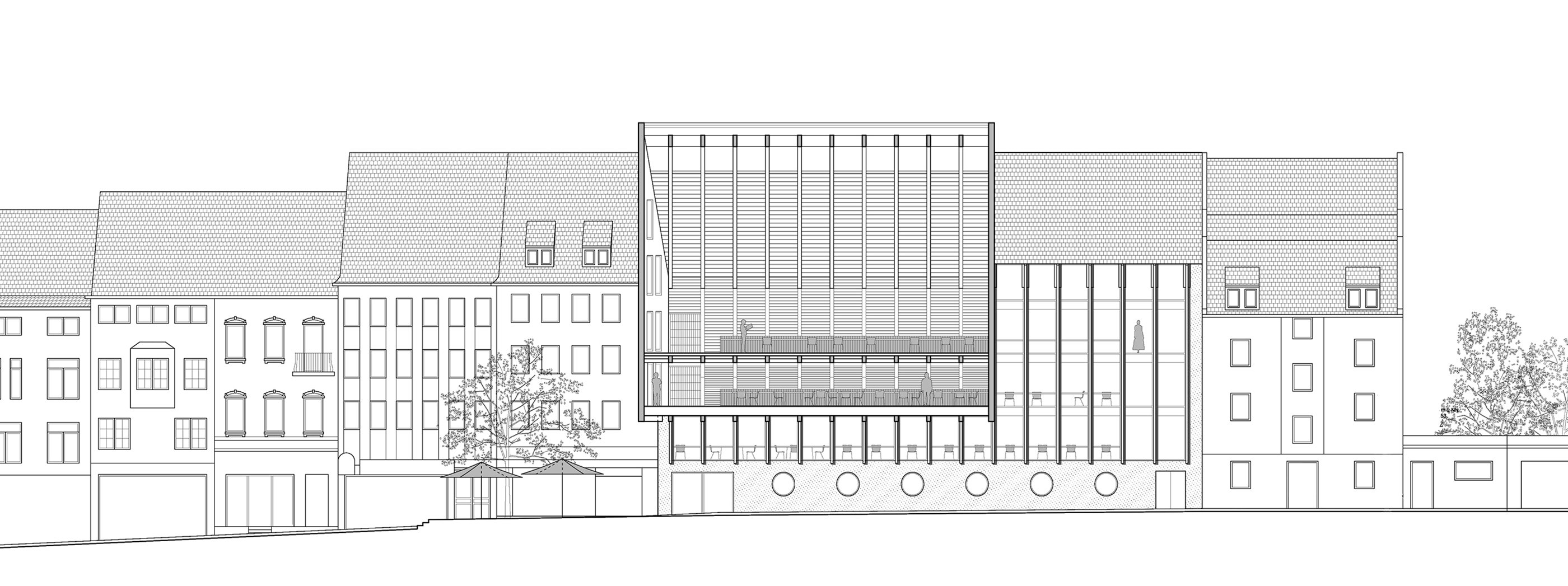
  • Cross section
  • Section longitudinal
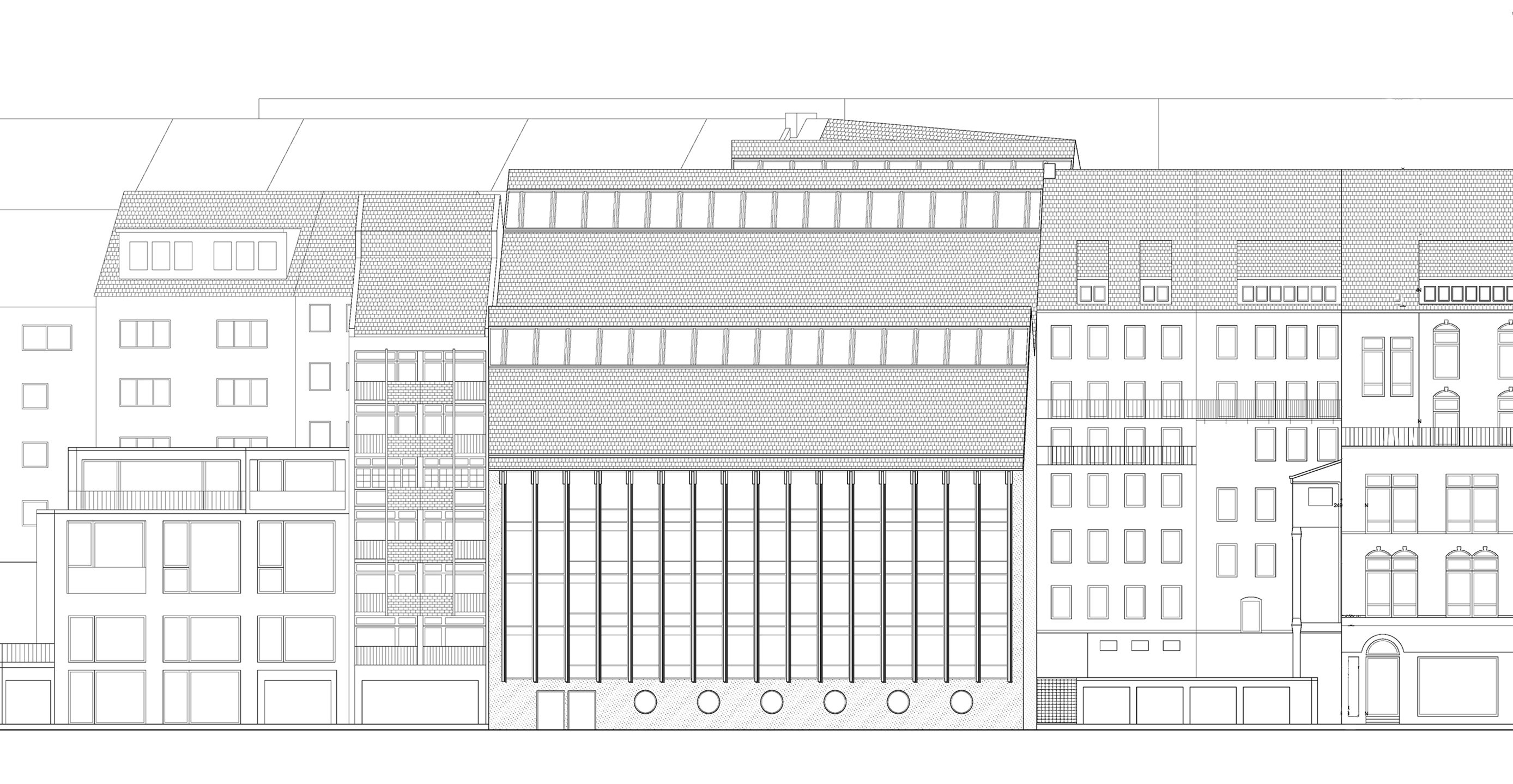
  • Elevation north
  • Elevation south
  • Entrance level
  • Floor plans - level -05, -04, -03, -02
  • Floor plans - level -01, 01, 02, 03