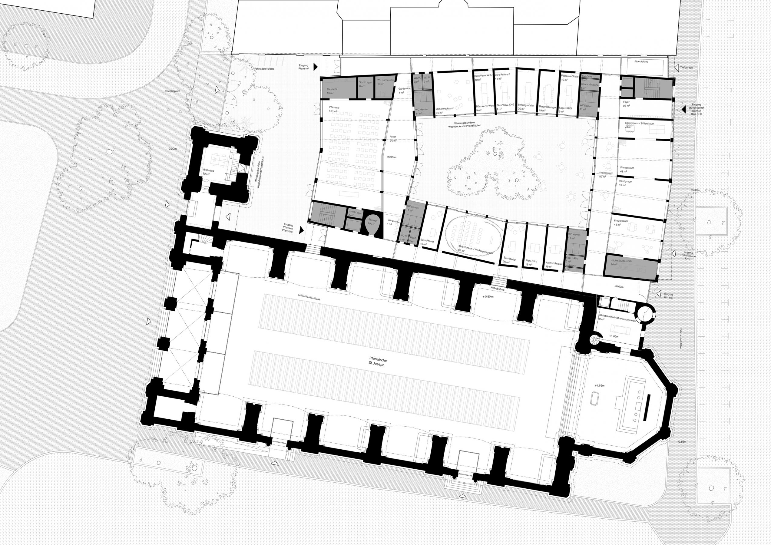
Clerical community St. Joseph
Munich, Germany
Competition team:
Tommaso Colombo, Goncalo Leite, Maura Pagani, Vera Reimann, Aria Rodomonti, Sara Sagui
Landscape architecture: capattistaubach Landschaftsarchitektur, Berlin, Germany
Structural engineering: Bauert Konstruktion GmbH & Co KG, Berlin, Germany
Fire protection: Gruner Deutschland GmbH, Berlin, Germany