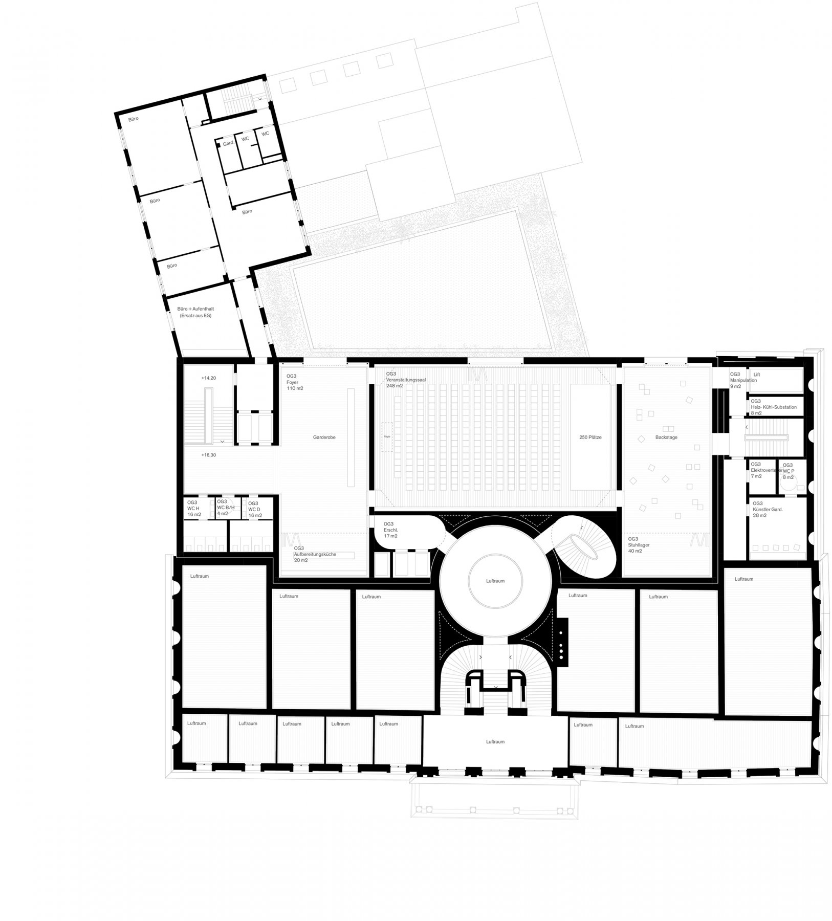
State museum Ferdinandeum
Innsbruck, Austria
Competition 2021, 2nd Prize
Architect:
Bruno Fioretti Marquez
Competition Team:
Susanna Bier, Martino Bonfioli, Gonçalo Filipe Leite, Tobias Rabold, Nicholas Schüller, Yannick Schulze
Structural engineering: Schnetzer Puskas Ingenieure, Basel, Switzerland
Fire protection: Gruner GmbH, Berlin, Germany
Building physics: Amstein & Walter AG, Zurich, Switzerland
Acoustics: Theapro GmbH, Munich, Germany
Acoustics: Studio Singer, Munich, Germany