State Archive Kitzingen

Read More Read Less
1/14
  • bfm_SAK_Innenraum
  • bfm_sak_siteplan
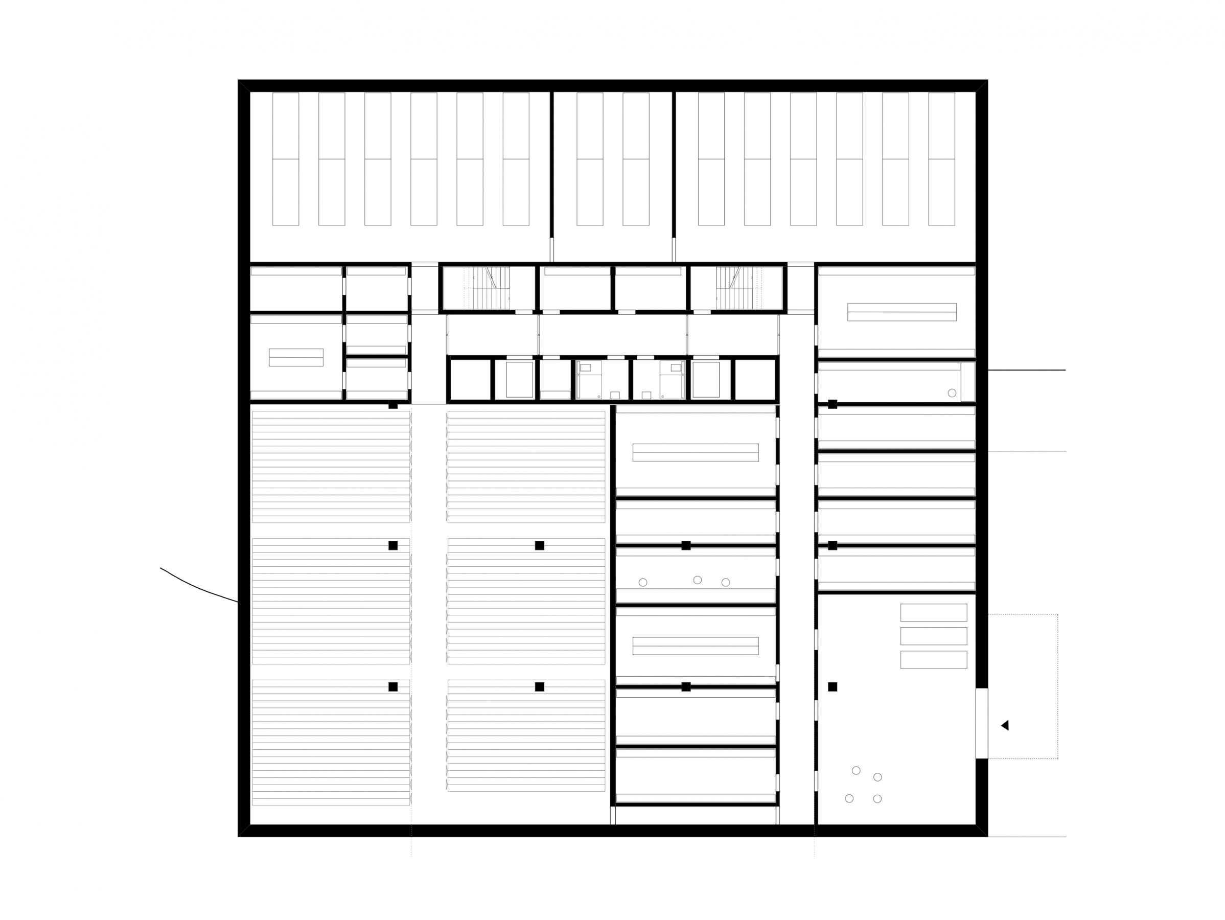
  • bfm_sak_ EG
    Ground floor
  • bfm_SAK_OG 1-2
    First and second floor
  • bfm_SAK_OG 3
    Third floor
  • bfm_SAK_UG 1
    Basement
  • bfm_SAK_UG 2
    Second basement
  • bfm_SAK_UG 3
    Third basement
  • bfm_sak_elevation north
    elevation north
  • bfm_sak_elevation west
    Elevation west
  • bfm_sak_elevation east
    Elevation east
  • bfm_sak_elevation south
    Elevation south
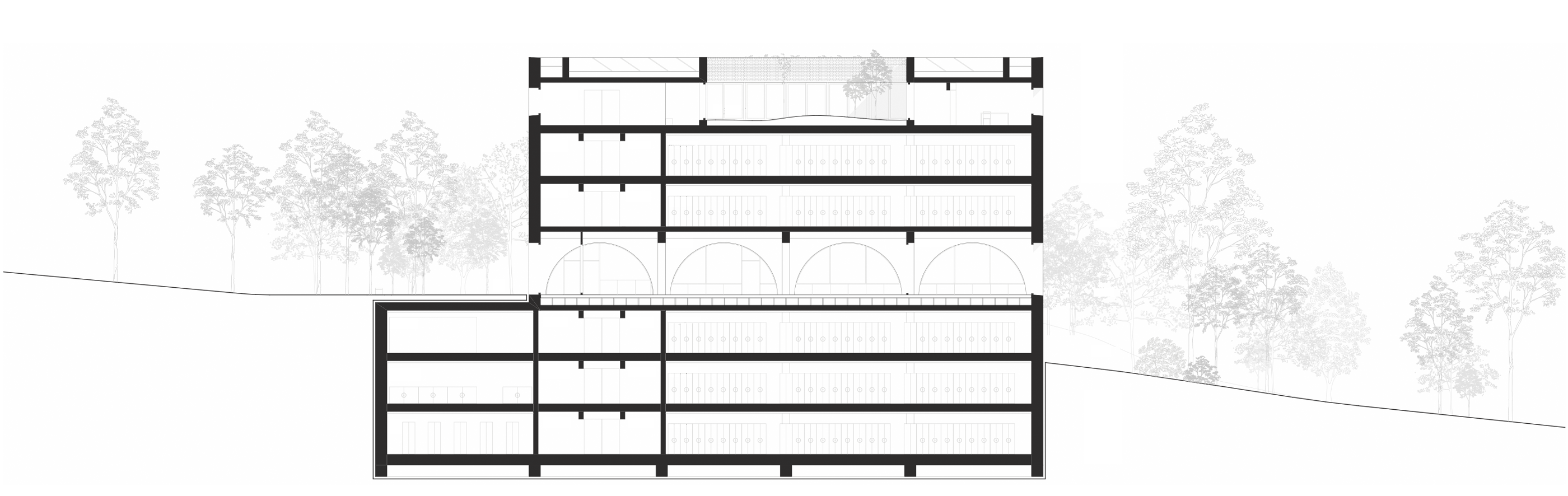
  • bfm_sak_section logitudinal
    Section
  • bfm_sak_section
    Section