Bruno Fioretti Marquez
Menu
Rostock-Warnow Quarter - Multi-generational centre
1
/9
Foyer
Gardens with pergola on the roof top
Detail section - zones are creating different functional spaces
Axonometrie upper floors for the elderlies
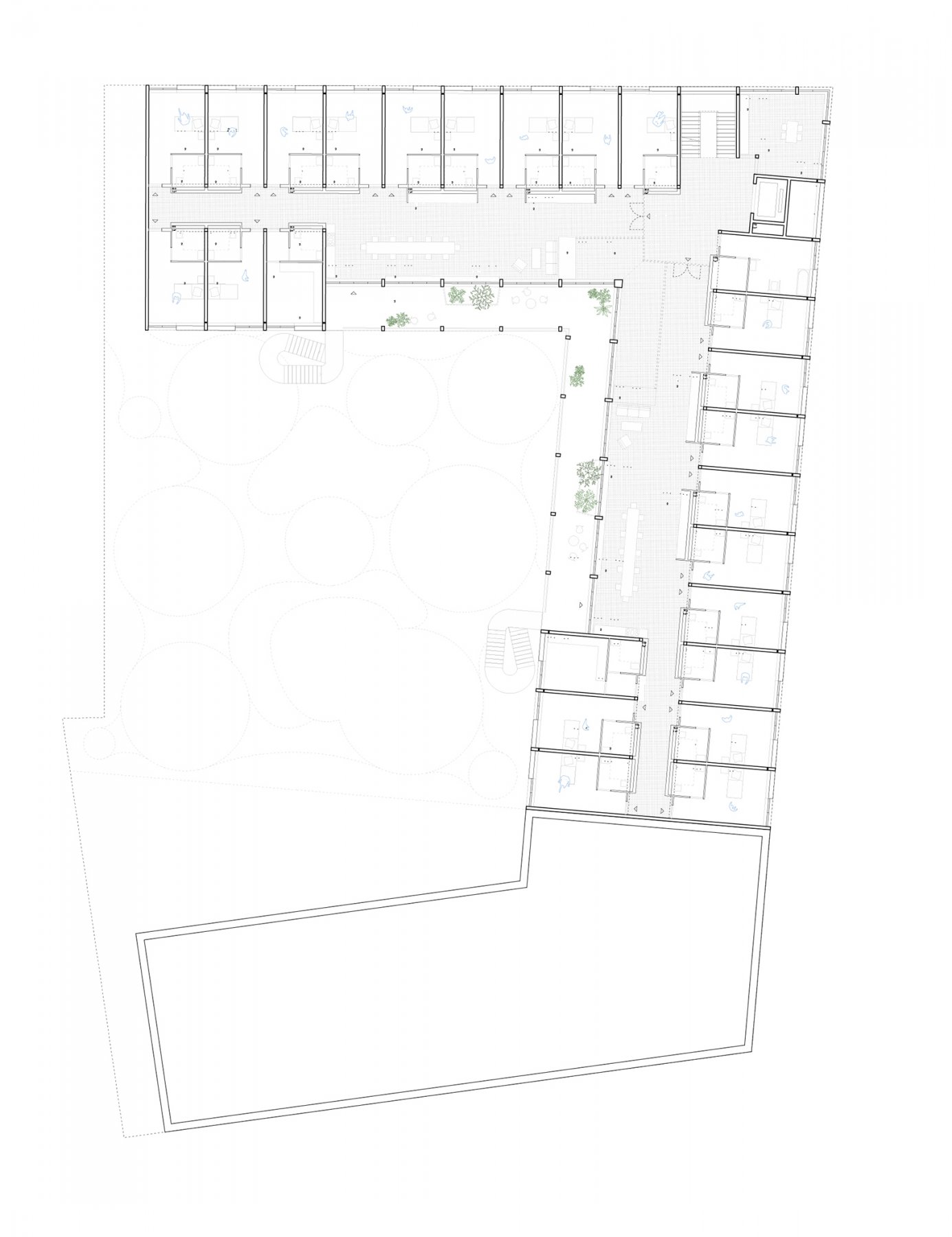
2nd and 3rd floor
4th floor
roof top
Legal
Privacy