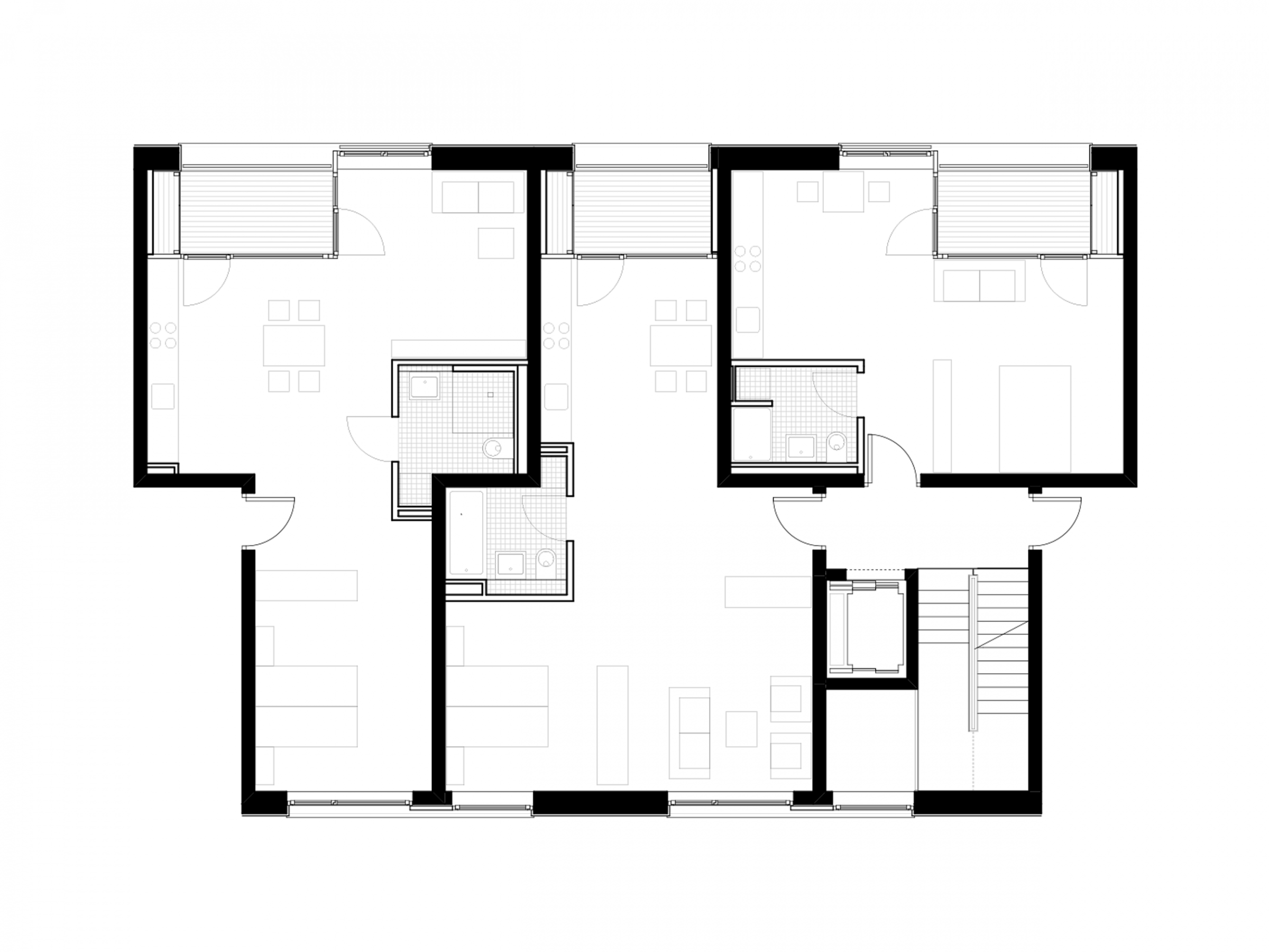
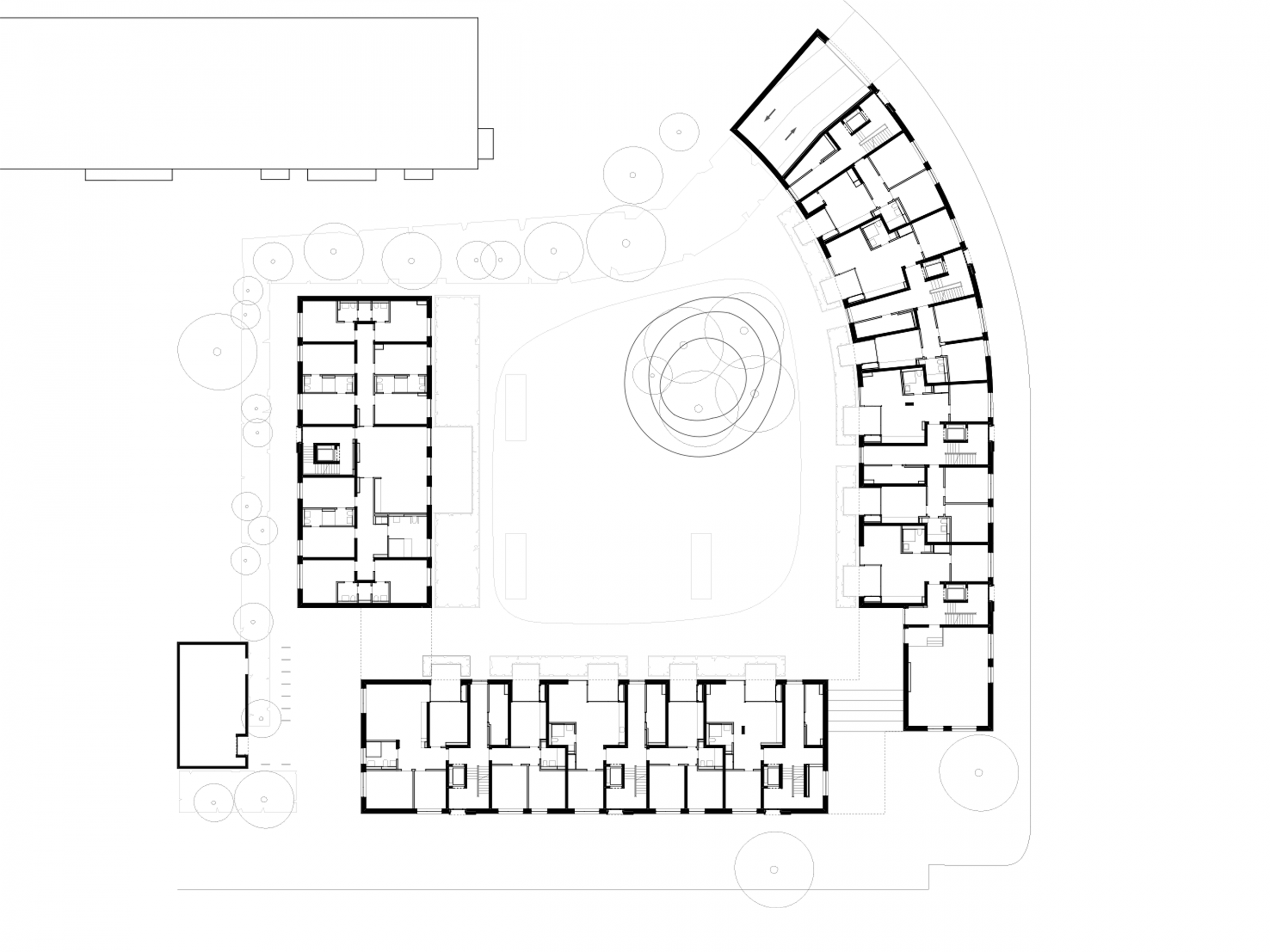
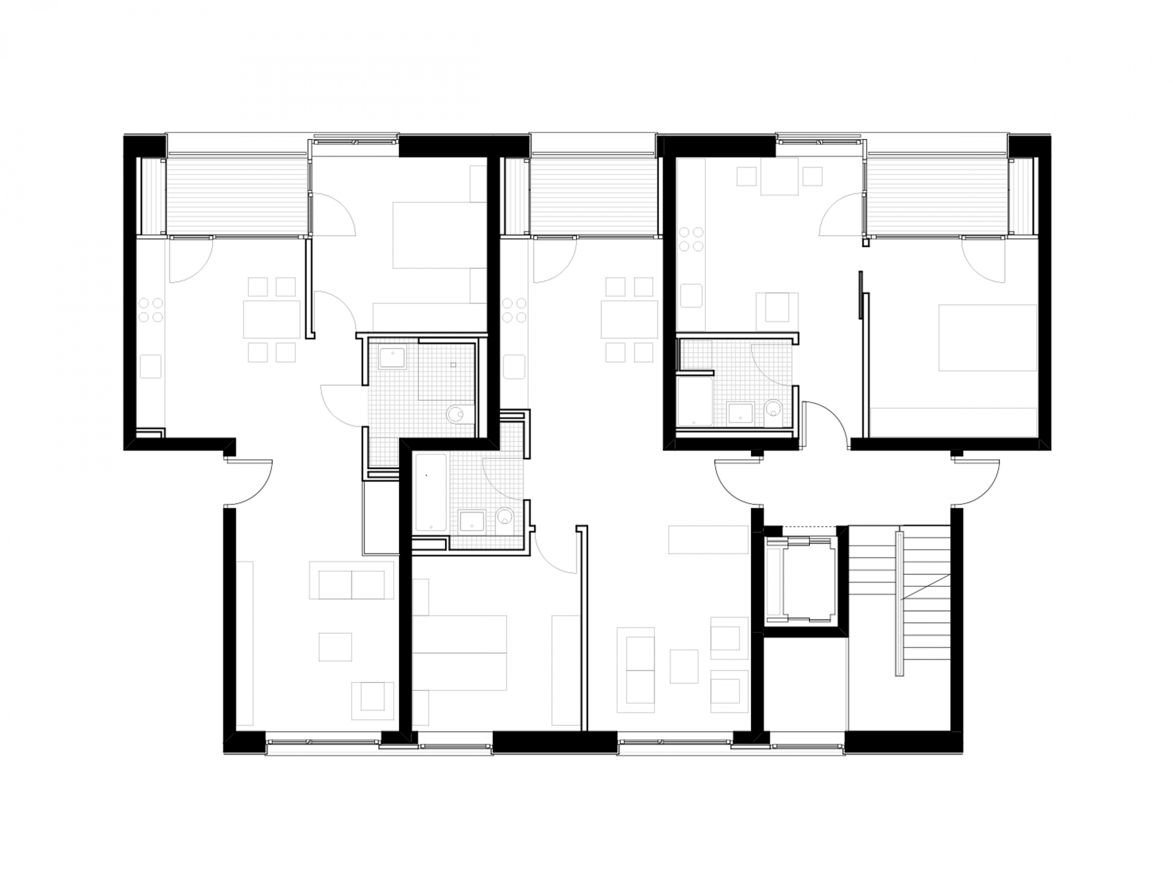
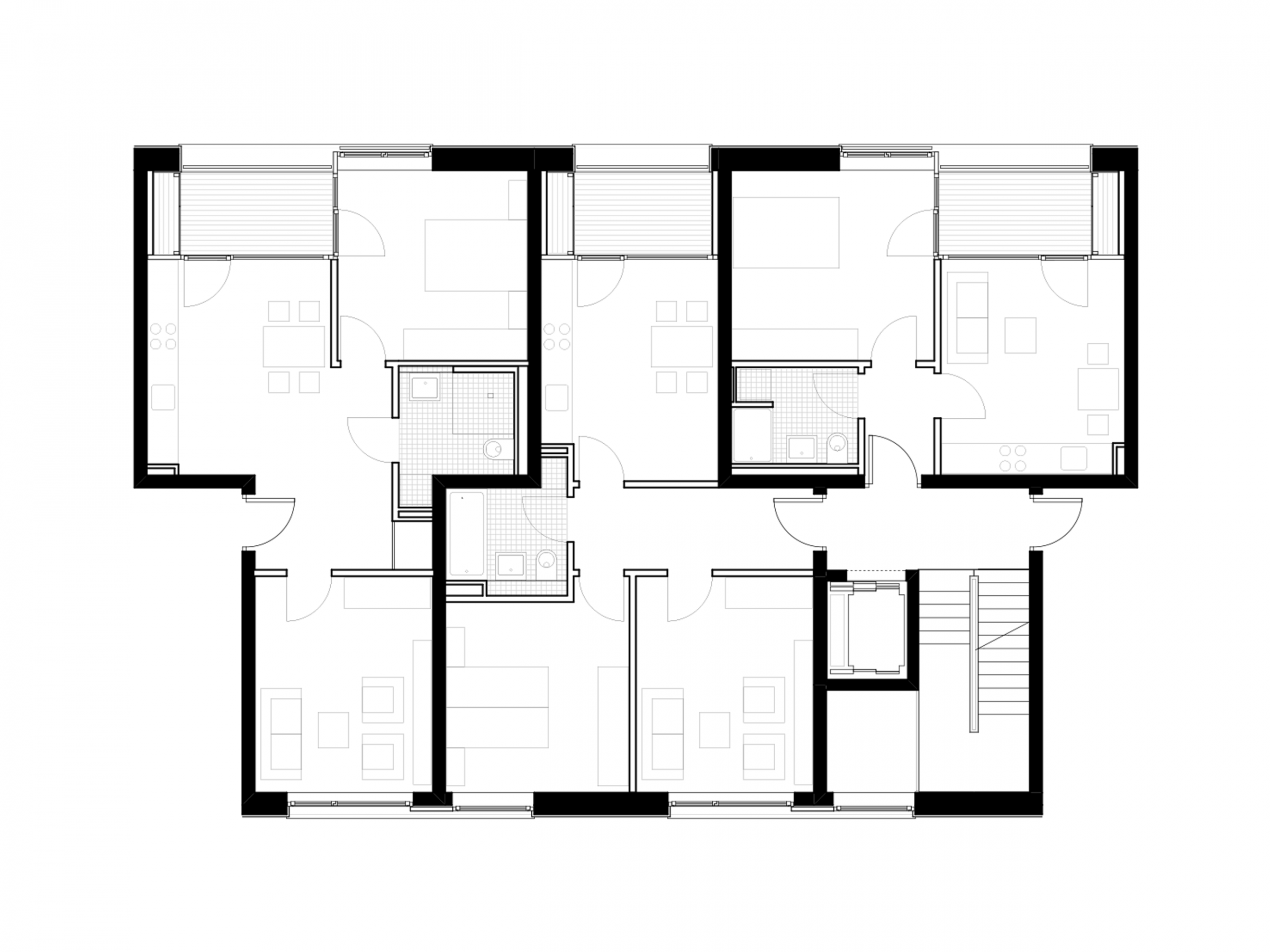
Residential building Bruno Taut Siedlung Schillerpark
UNESCO World Heritage
Berlin, Germany
Competition 2012, realization 2012-2015
BDA Preis Berlin 2018, Honorable Mention
Deutscher Ziegelpreis 2017, Award
Architect:
Bruno Fioretti Marquez
Project Directors:
Rainer Schmitz
Project Team:
André Mädler, Laetitia Voulion, Michael Kölmel, Frederik Eilers, Naomi Julia Henning, Franziska Käuferle
Client:
Berliner Bau- und Wohnungsgenossenschaft von 1892 eG
Planning:
Executive Architect: Haeffner Zenk GmbH, Potsdam, Germany
Building Services: Ingenieurgesellschaft Zimmermann für Gebäude- und Labortechnik GmbH, Berlin, Germany
Electrical Engineering: Ingenieurgesellschaft Zimmermann, Berlin, Germany
Landscape Architect: Vogt Landschaft, Berlin, Germany
Structural Engineering: ifb Frohloff Staffa Kühl Ecker, Berlin, Germany
Consulting:
Building Physics: Ingenieurbüro für Bauphysik und Baukonstruktion
ARGE Wilke Ritter, Potsam, Germany
Fire Protection: Dipl. Ing. Peter Stanek, Berlin, Germany
Photography:
Christoph Rokitta, Berlin, Germany
Building Data:
Gross Floor Area: 11’724 sqm
Number of levels: 5
Net Floor Area: 9’901 sqm
Gross Building Volume: 37’036 cbm