Residential and business complex Pergolenviertel Hamburg

Read More Read Less
1/11
  • bfm HAM Pergolenviertel Hamburg elevation west
    Elevation west
  • bfm HAM Pergolenviertel Hamburg elevation north
    Elevation north
  • bfm HAM Pergolenviertel Hamburg elevation south
    Elevation south
  • bfm HAM Pergolenviertel Hamburg siteplan
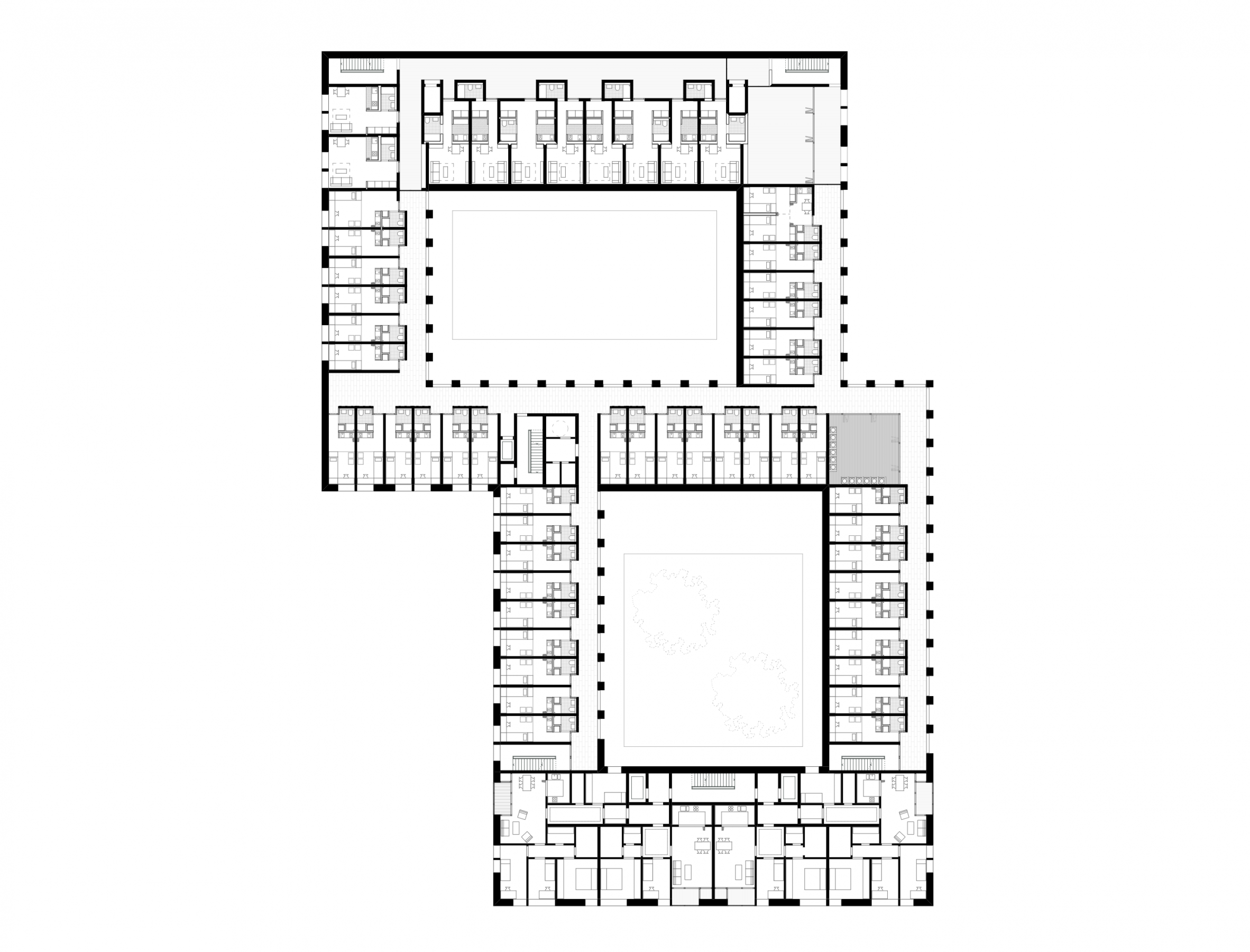
  • bfm HAM Pergolenviertel floorplan EG
    Basement
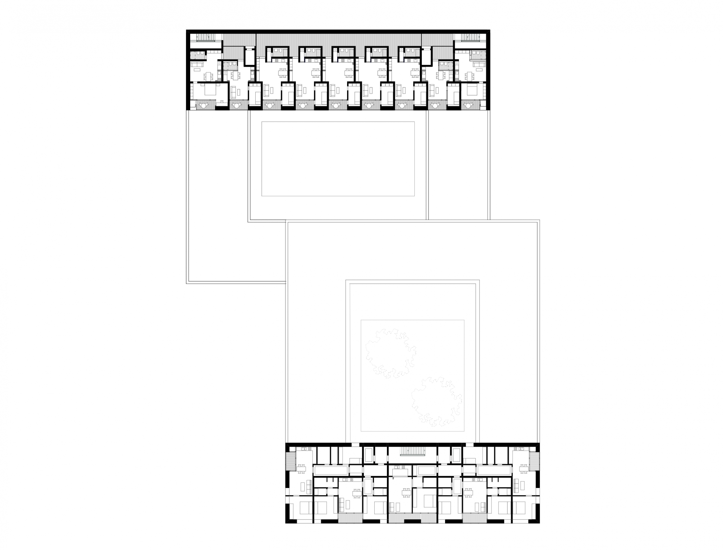
  • bfm HAM Pergolenviertel Hamburg floorpan 3-4 OG
    3rd-4th floor
  • bfm HAM Pergolenviertel Hamburg floorpan 13-14 OG
    13th - 14th floor
  • bfm HAM Pergolenviertel Hamburg section BB
    Section
  • bfm HAM Pergolenviertel Hamburg section AA
    Section
  • bfm HAM Pergolenviertel Hamburg PIKTO