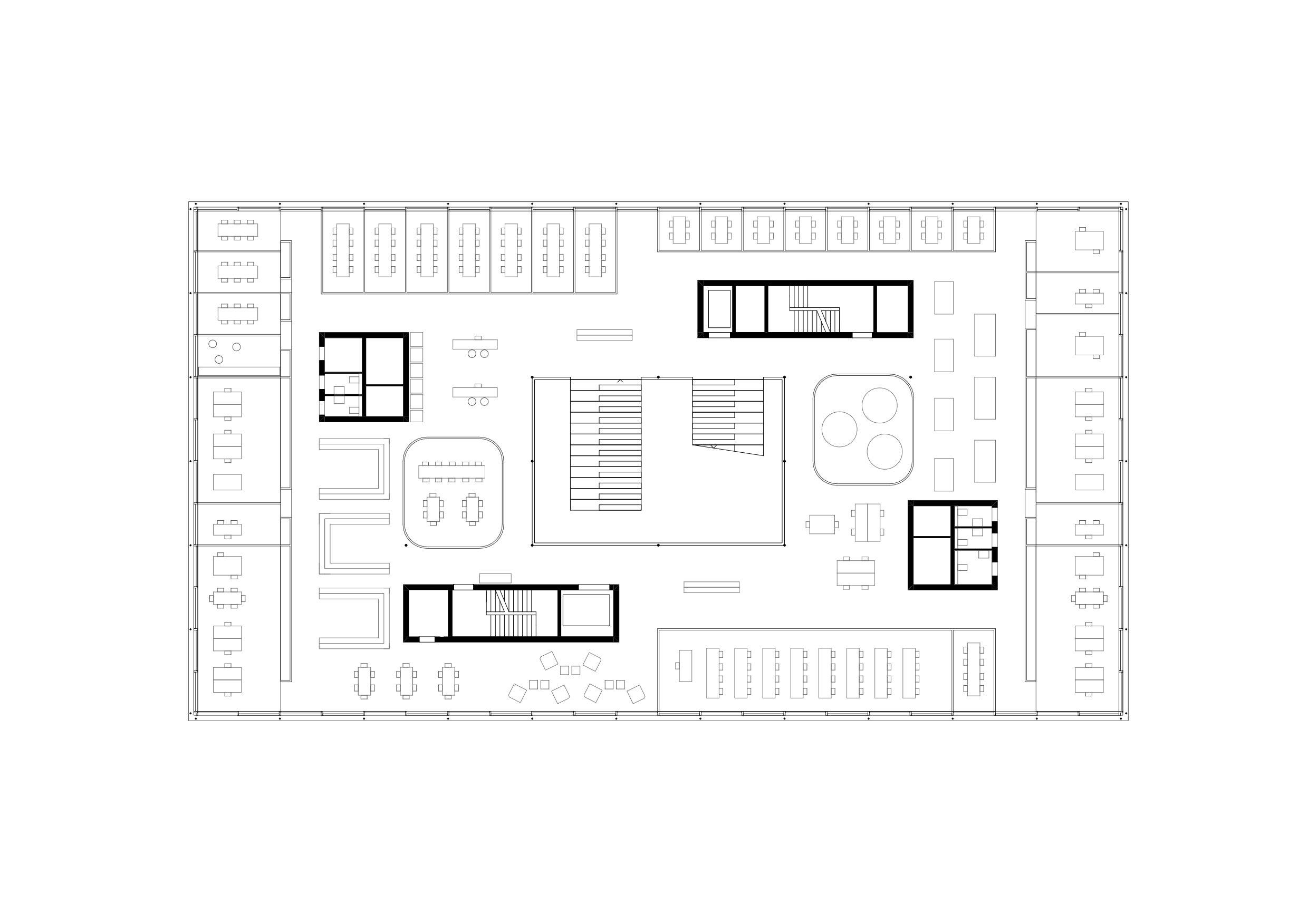
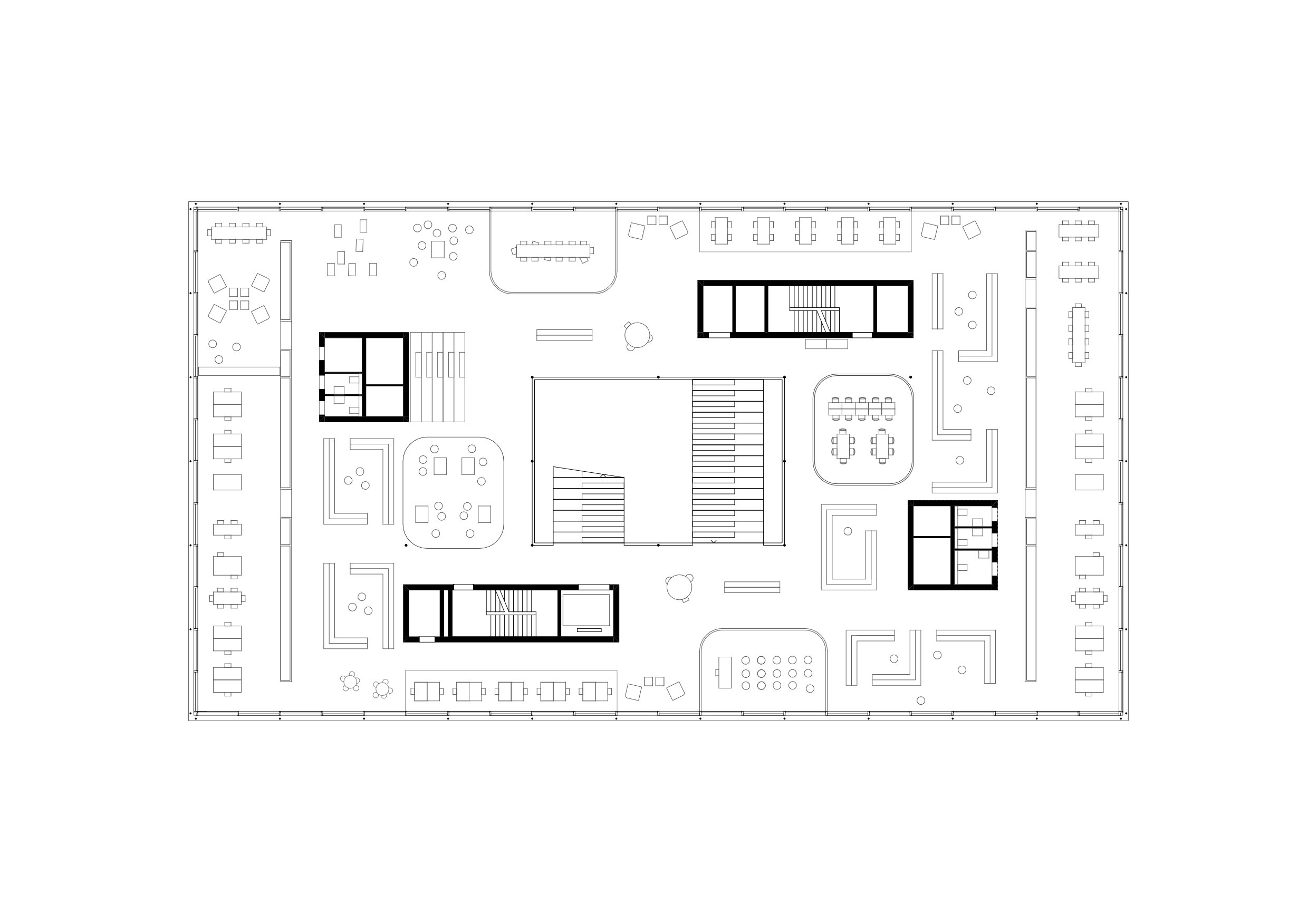
Public Library Mannheim
Mannheim, Germany
Competition 2020, 1st prize
Client:
Stadt Mannheim
Architect:
Bruno Fioretti Marquez
Project directors:
Sebastian Reinhardt
Project team:
Kay Fischer, Gonçalo Leite, Johannes Mirwald, Jan Pfennig, Nadine Stecklina
Competition team:
Kay Fischer, Gabriele Gagliardi, Gonçalo Filipe Leite, Aria Rodomonti, Julius Schmid-Barbo, Robert Saat, Nicholas Schüller
Planning:
Landscape architect: capattistaubach urbane landschaften, Berlin, Germany
Structural engineering: Zigmo Engineering Mannheim GmbH, Germany
Building services: ZWP Ingenieur AG, Berlin, Germany
Consulting:
Building Physics: Die Bauingenieure, Karlsruhe, Germany
Fire Protection: HPP Süd Sachverständige für Brandschutz GmbH, Ludwigshafen am Rhein, Germany
Visualization:
Ponnie Images, Cologne, Germany