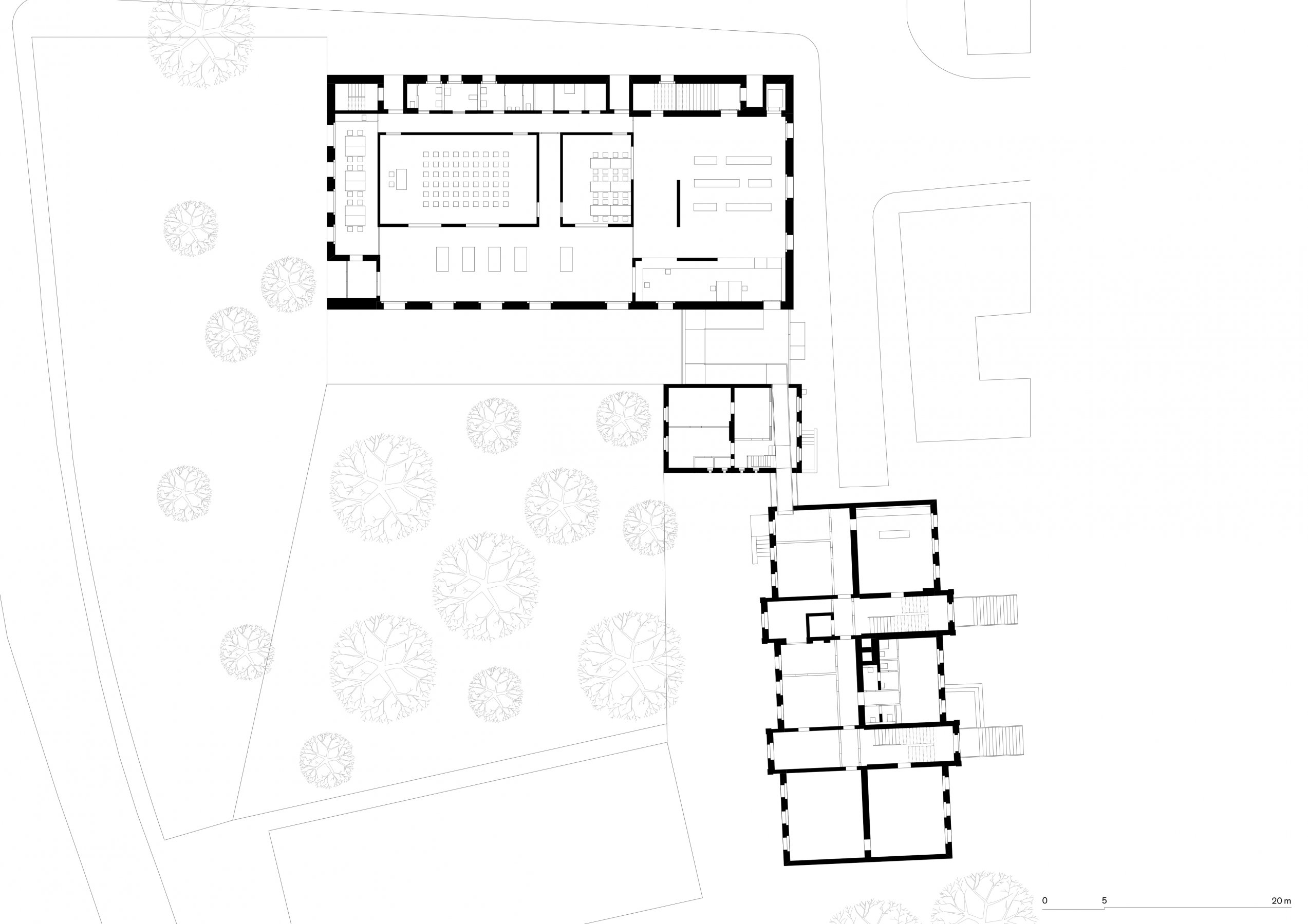
Public Library “Mittelpunktbibliothek” Berlin-Köpenick
Berlin-Köpenick, Germany
Competition 2005, Realization 2006 – 2010
BDA Preis Berlin, Award
Client:
Land Berlin, Bezirksamt Treptow Köpenick
Architect:
Bruno Fioretti Marquez
Project Director:
Nele Dachmann
Project Team:
Anna Saeger, Giovanni Gabai
Planning:
Executive Architect: Häffner + Zenk, Potsdam, Germany
Building Services: Winter Ingenieure, Berlin, Germany
Structural Engineering: Studio C, Rüdiger Ihle, Berlin, Germany
Consulting:
Building Physics: Müller BBM, Berlin, Germany
Fire Protection: Berliner Brandschutz, Berlin, Germany
Photography:
Alessandra Chemollo, Venice, Italy
Building Data:
Gross Floor Area: 4.248 m²
Number of levels: 3
Net Floor Area: 3.408 m²
Gross Building Volume: 15.688 m³