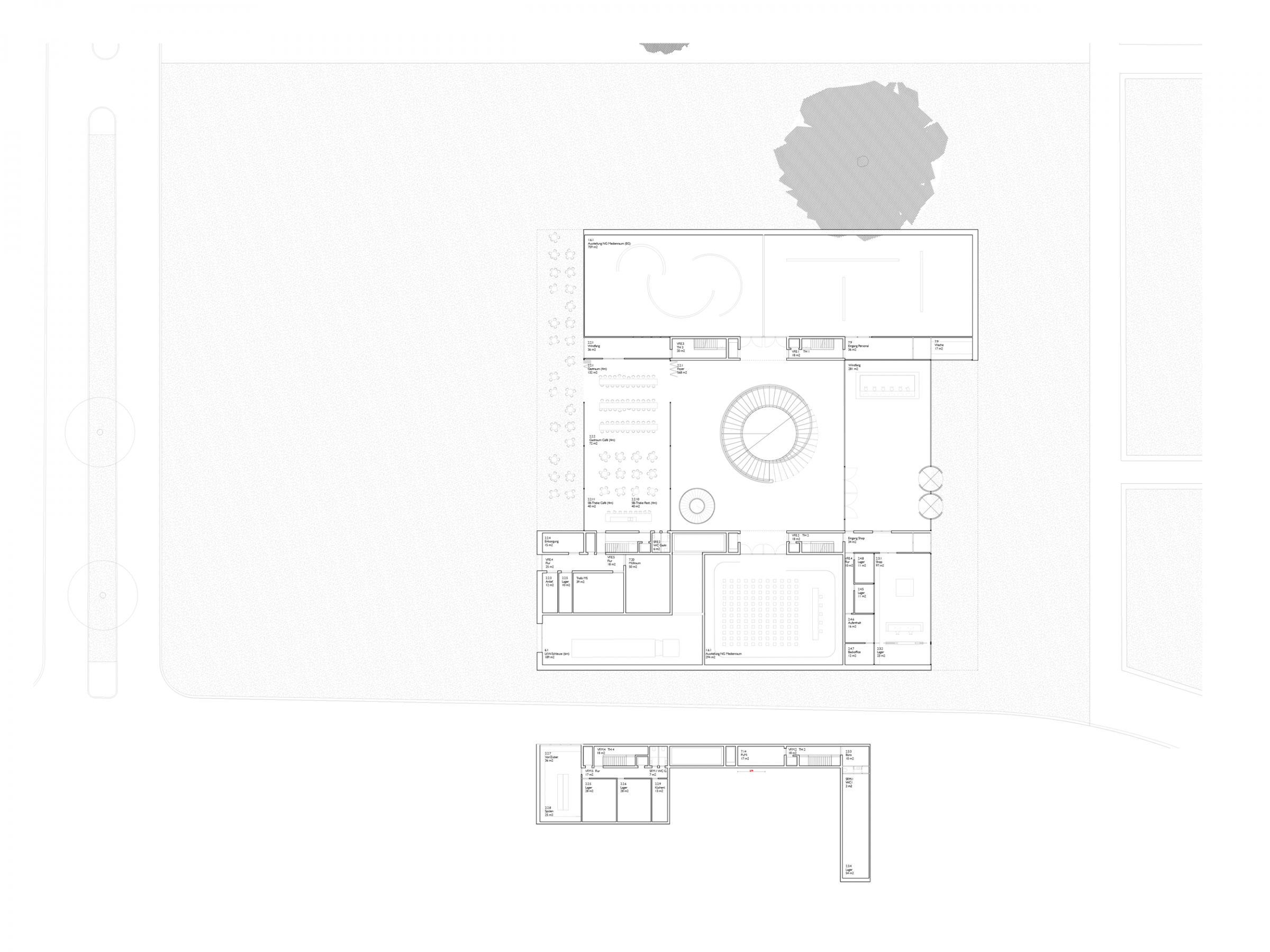
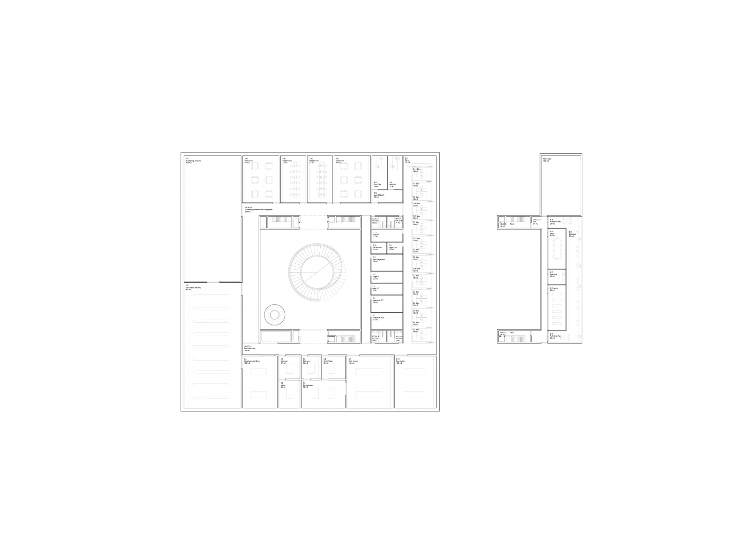
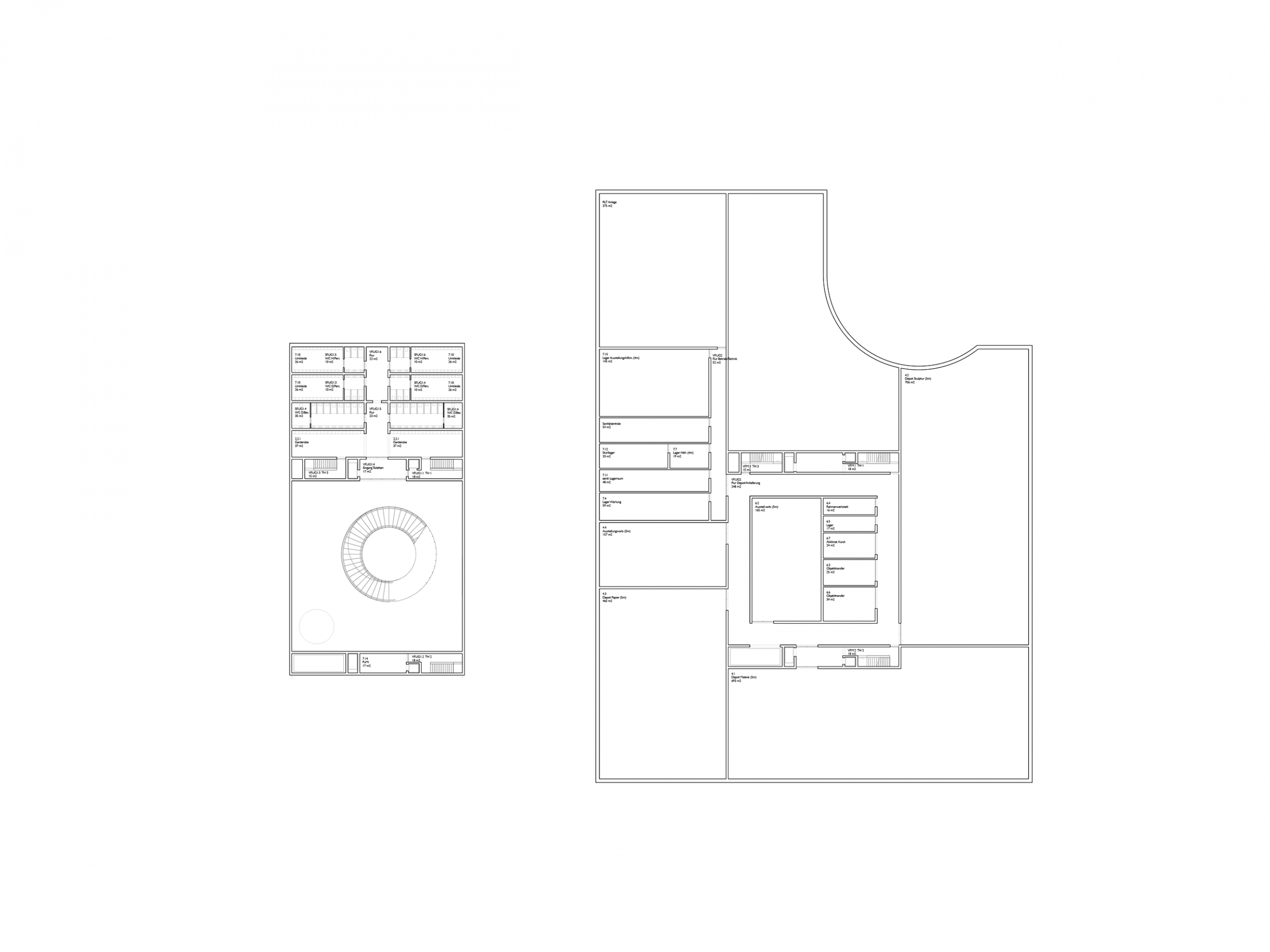
Museum des 20. Jahrhunderts Berlin
Berlin, Germany
Competition 2016, 3rd Prize
Client:
Stiftung Preußischer Kulturbesitz Berlin
Architect:
Bruno Fioretti Marquez
Competition team:
Benedikt Breitenhuber, Johannes Hackethal, Marco Falzoni, Sergey Kolesov, Simon Palme, Yolanda Sanchez-Camacho
Landscape architect: Capattistaubach Landschaftsarchitekten, Berlin, Germany
Structural engineering: PICHLER Ingenieure GmbH, Berlin, Germany
Building services: HL-Technik Engineering Partner GmbH, Munich, Germany
Visualization:
Ponnie Images, Cologne, Germany