Modular Elementary Schools Berlin

Read More Read Less
1/35
  • Modulare Grundschule Berlin, type M
  • Visu 4
  • Colour scheme inspired by Giorgio Morandi
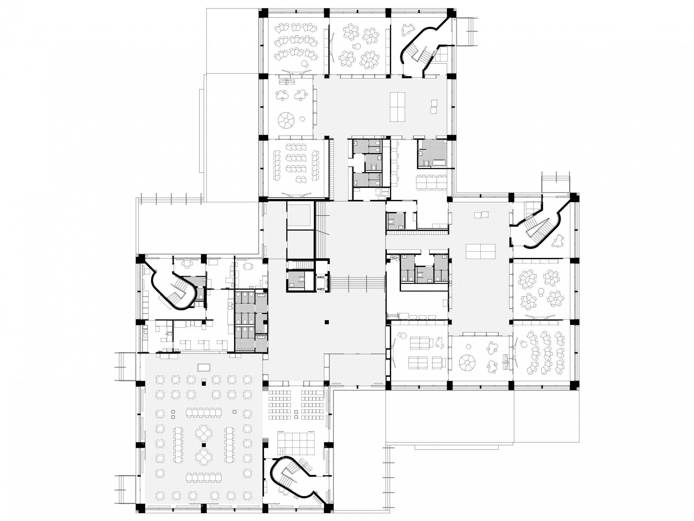
  • Modulare Grundschule Berlin, floor plan elements
    Floor plan elements
  • Modulare Grundschule Berlin, type S
    Type S
  • Modulare Grundschule Berlin, type M
    Type M
  • Modulare Grundschule Berlin, type L
    Type L
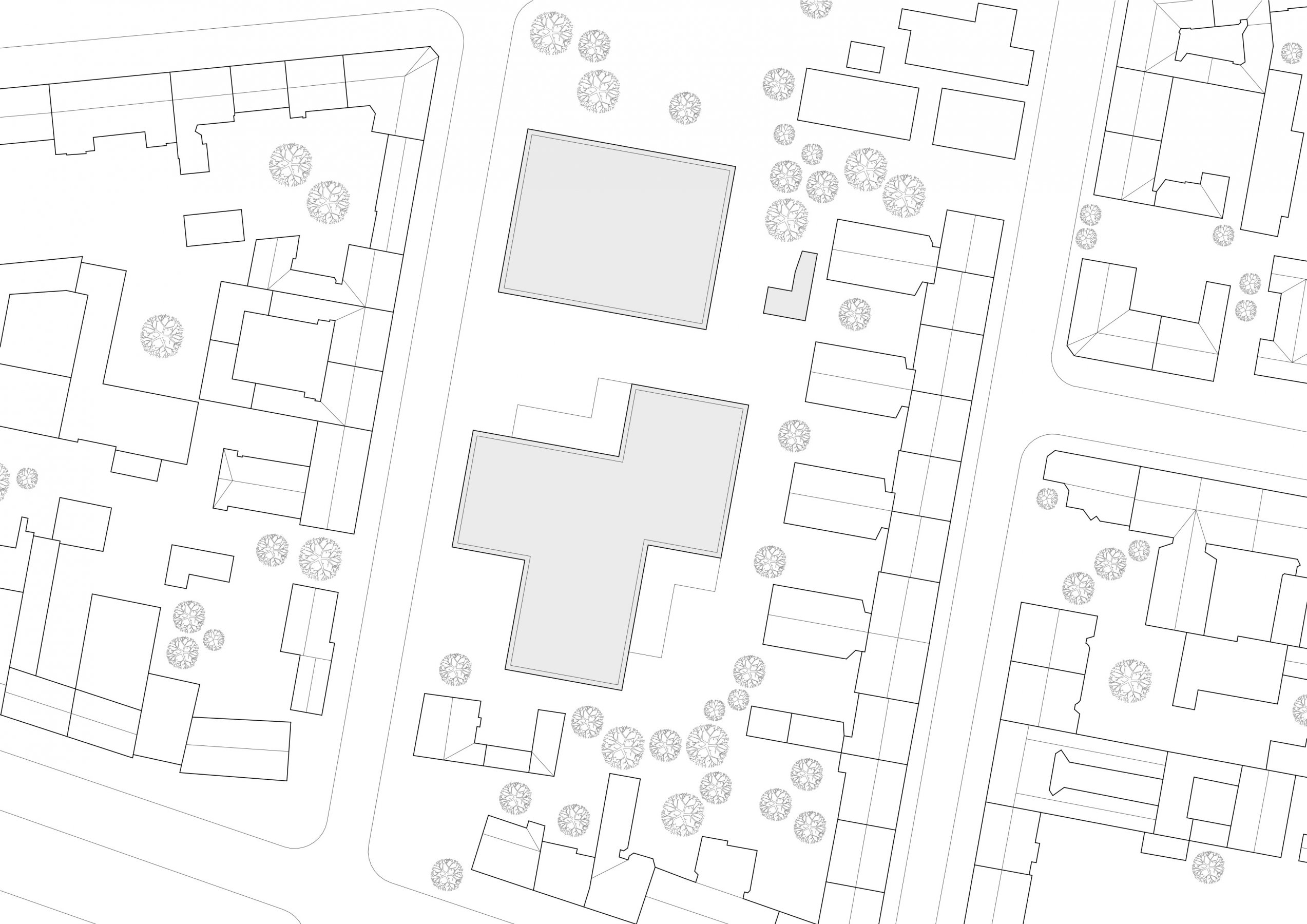
  • Lageplan exemplarisch
    Exemplary site plan
  • Site plan Adalbertstraße
  • Site plan Karower Chaussee
  • Site plan Nostitzstraße
  • Site plan Rennbahnstraße
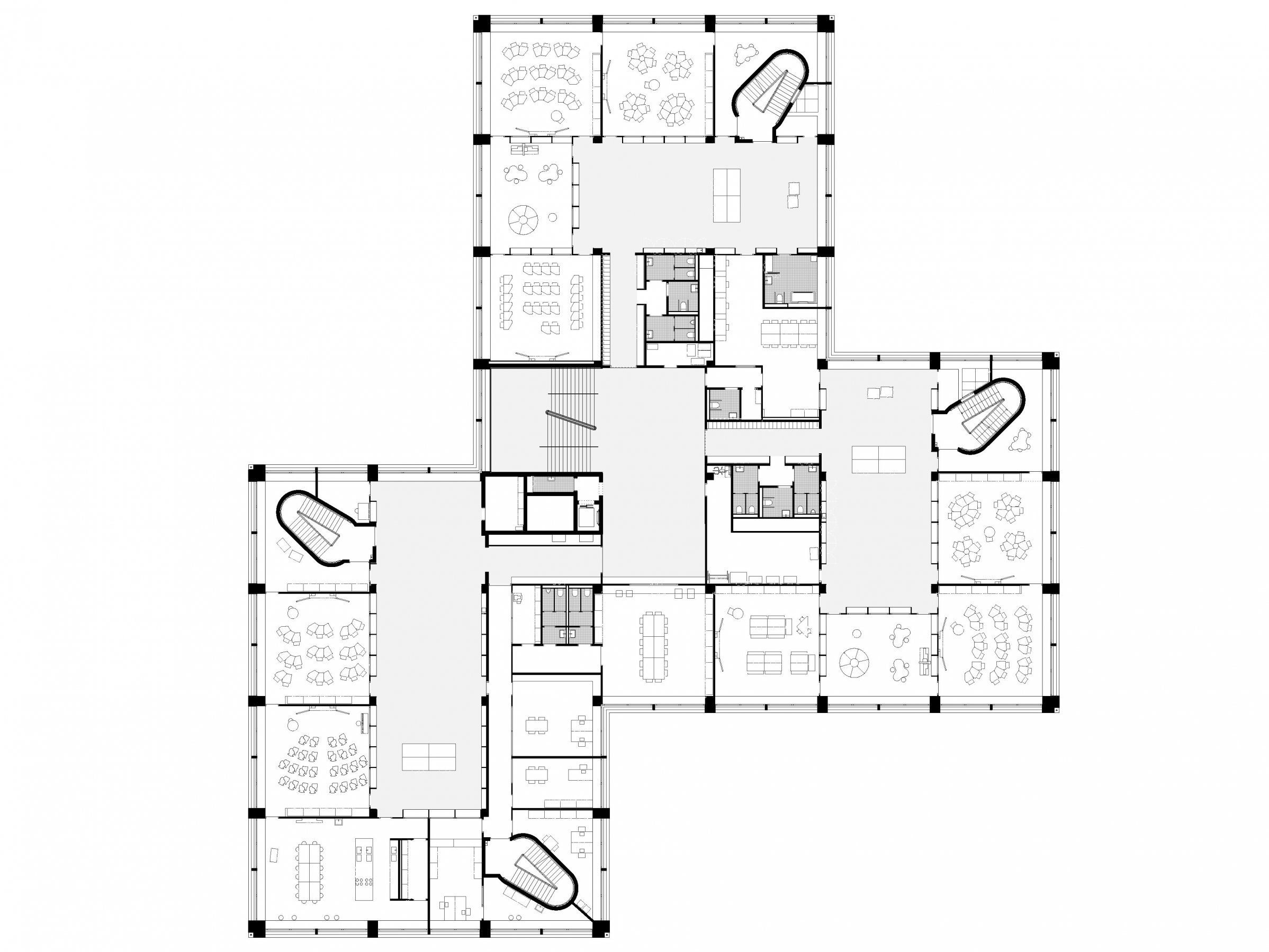
  • EG
    Floorplan ground floor
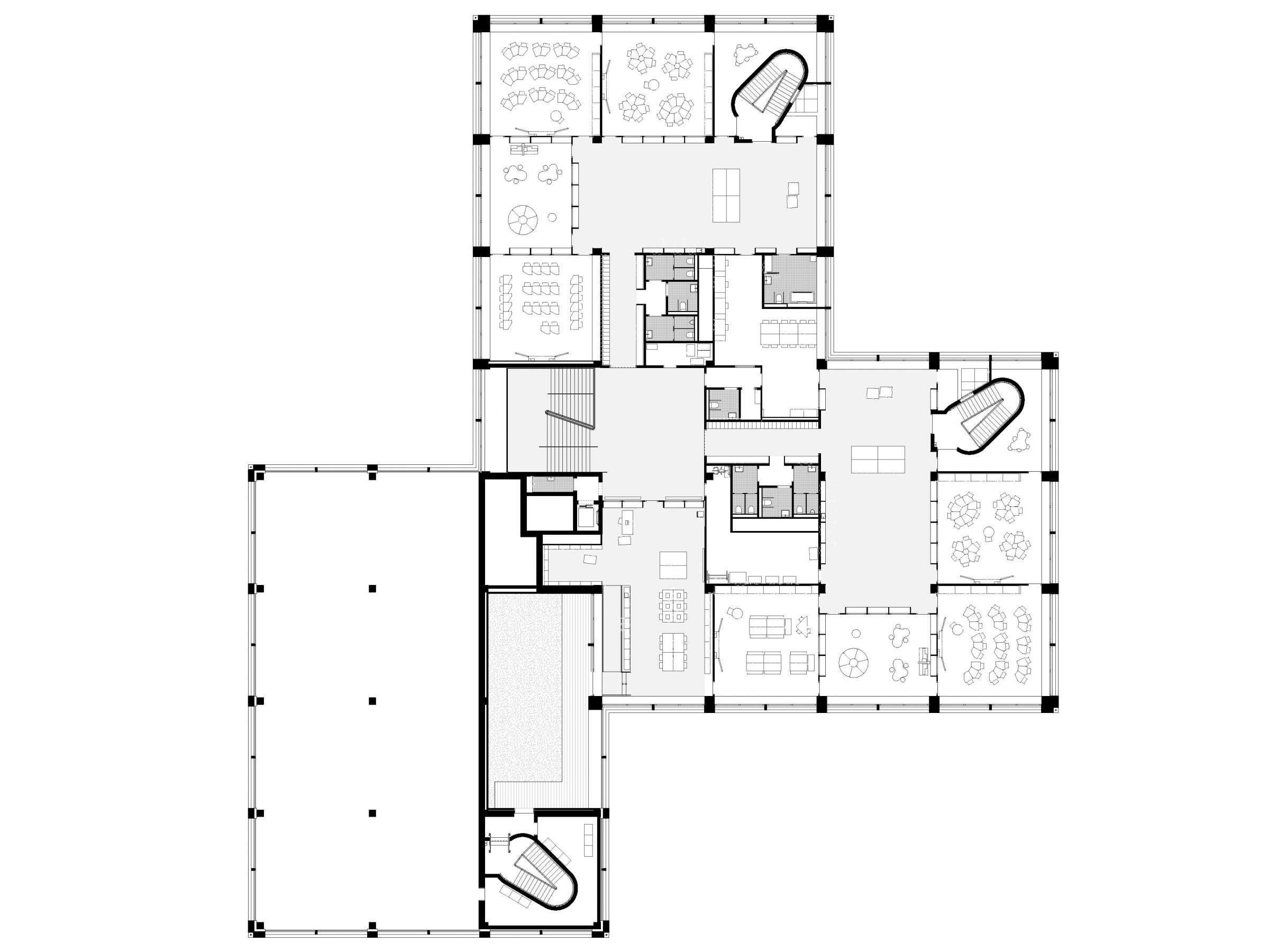
  • 1. OG
    Floorplan first floor
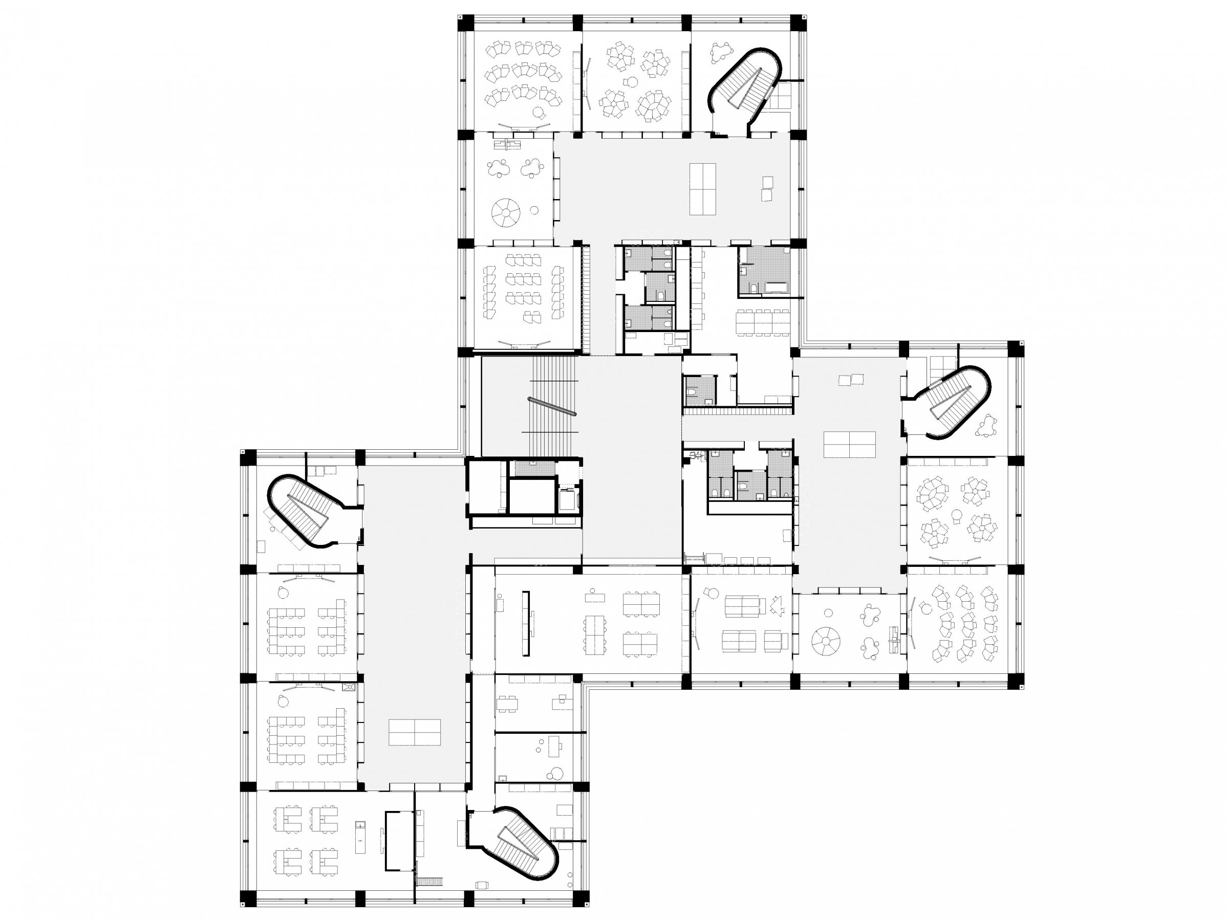
  • 2. OG
    Floorplan second floor
  • 3. OG
    Floorplan third floor
  • Schnitt A-A
    Section A-A
  • Schnitt B-B
    Section B-B
  • Section C-C
    Section C-C
  • Ansicht 1
    Elevation
  • Ansicht 2
    Elevation
  • Ansicht 3
    Elevation
  • Ansicht 4
    Elevation
  • Facade study
  • Modulare Grundschule Berlin, structural concept school
    Structural concept school
  • Modulare Grundschule Berlin, structural concept façade
    Structural concept façade
  • Modulare Grundschule Berlin, structural concept sports hall
    Structural concept sports hall
  • Modulare Grundschule Berlin, structural concept facade
    Structural concept façade