Bruno Fioretti Marquez
Menu
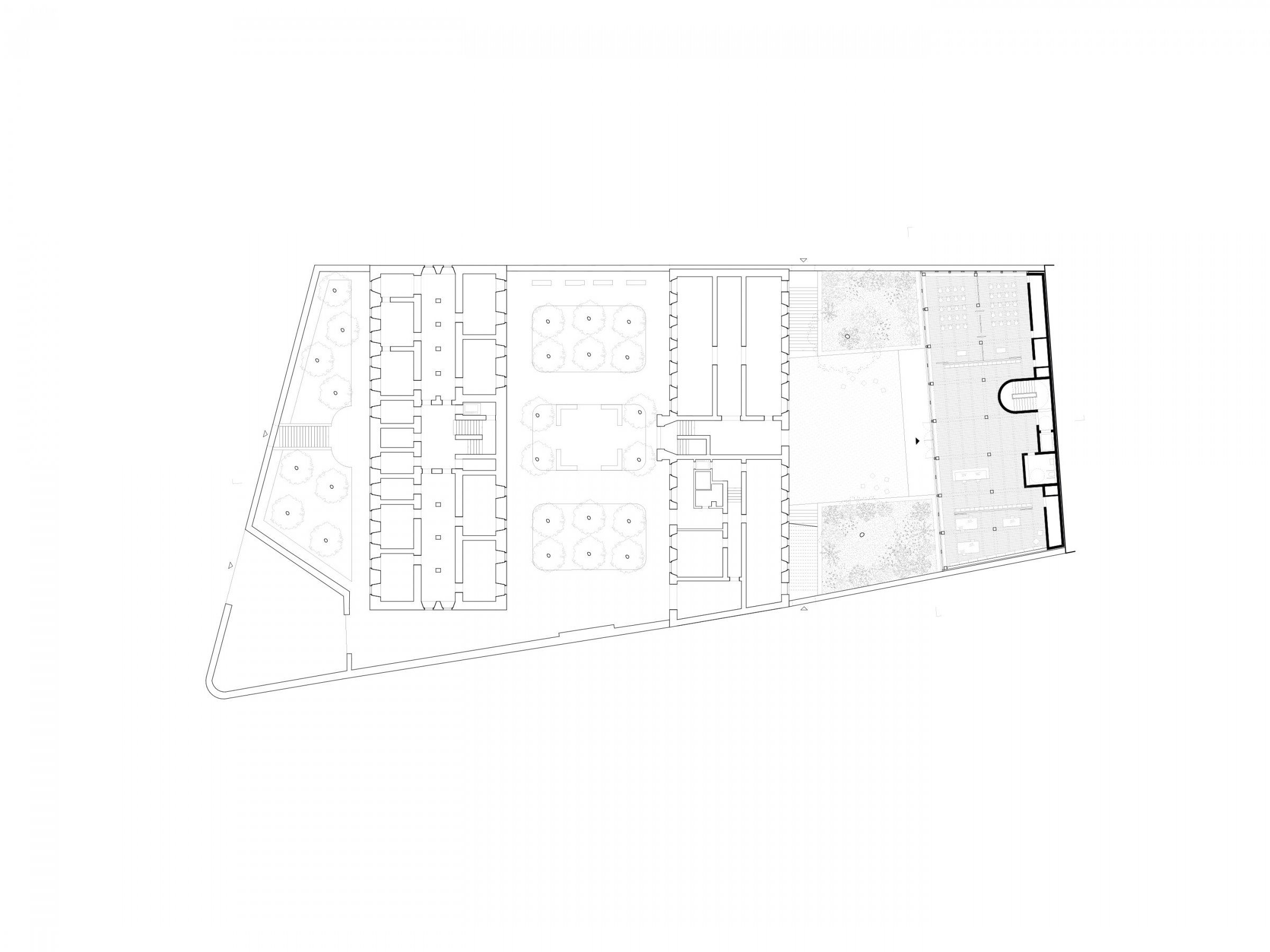
Library University Heidelberg 'Fauler Pelz'
1
/8
Ground floor
Upper floors
Axonometry
Section
Elevation
Legal
Privacy