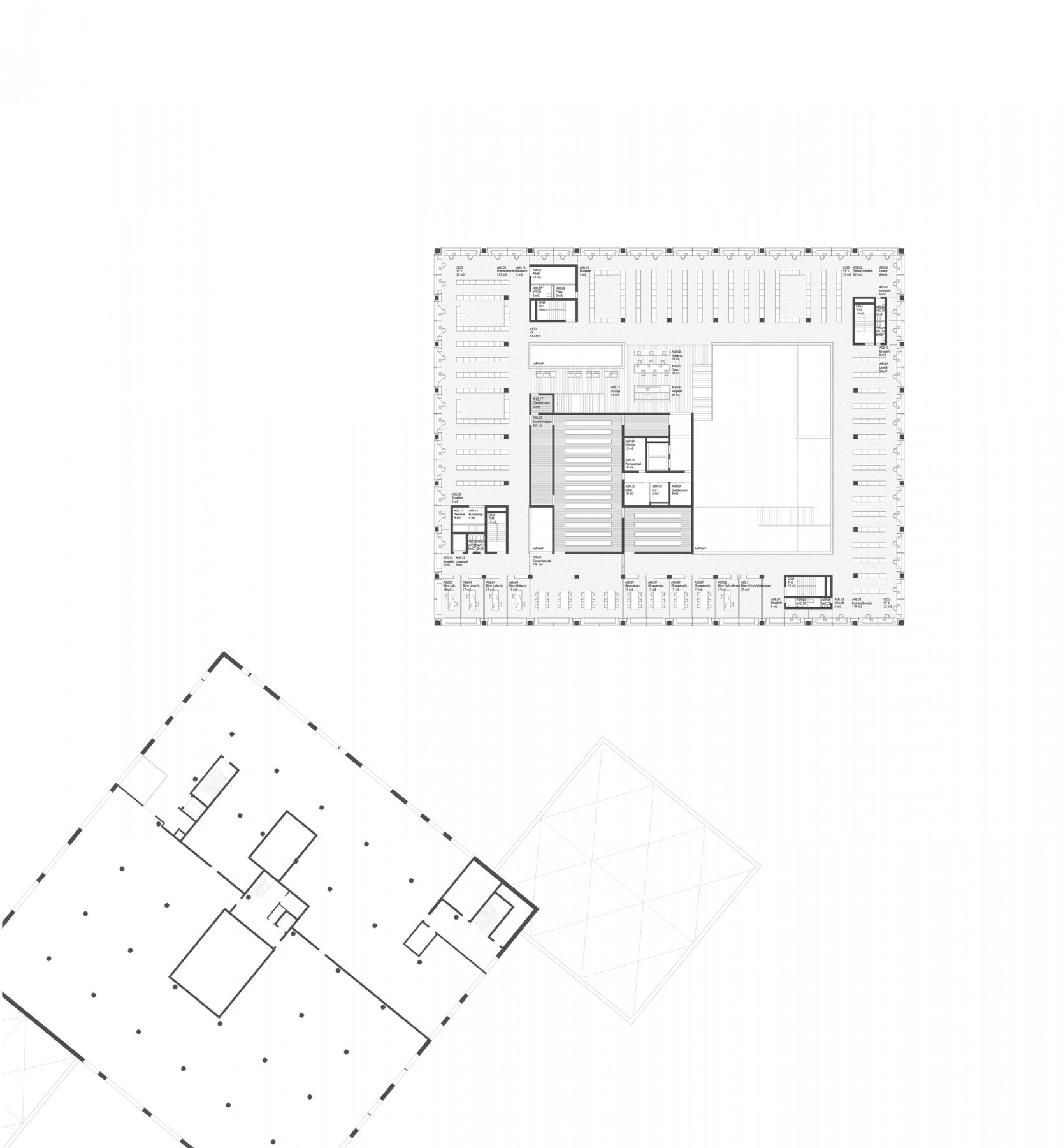
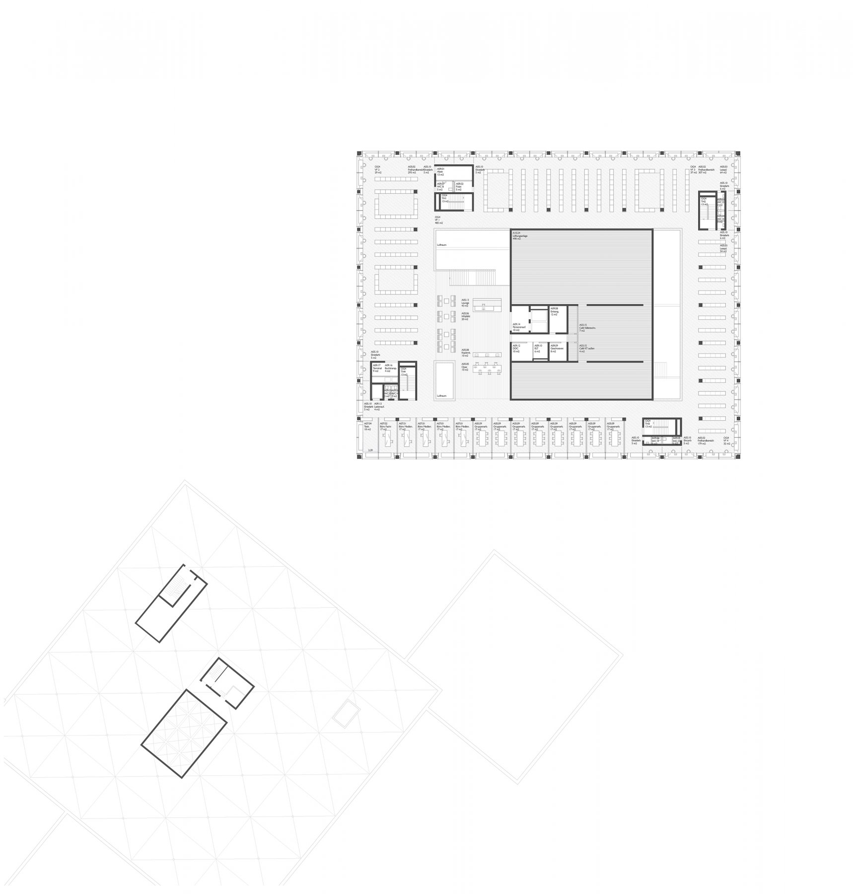
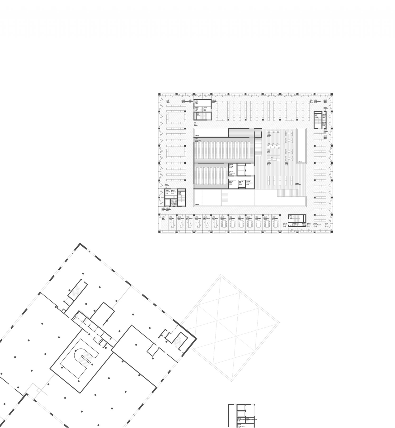
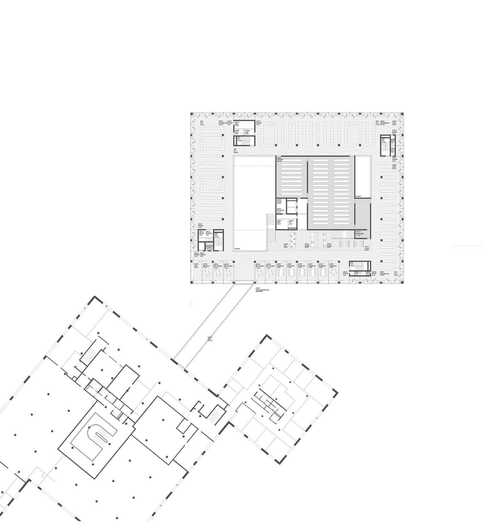
Library Justus–Liebig University
Gießen, Germany
Competition 2015
Architect:
Bruno Fioretti Marquez
Competition Team:
Lion Schreiber
Fire Protection: Dipl. Ing. Peter Stanek, Berlin, Germany
Structural engineering: ifb frohloff staffa kühl ecker, Berlin, Germany
Visualization:
PONNIE Images, Aachen, Germany