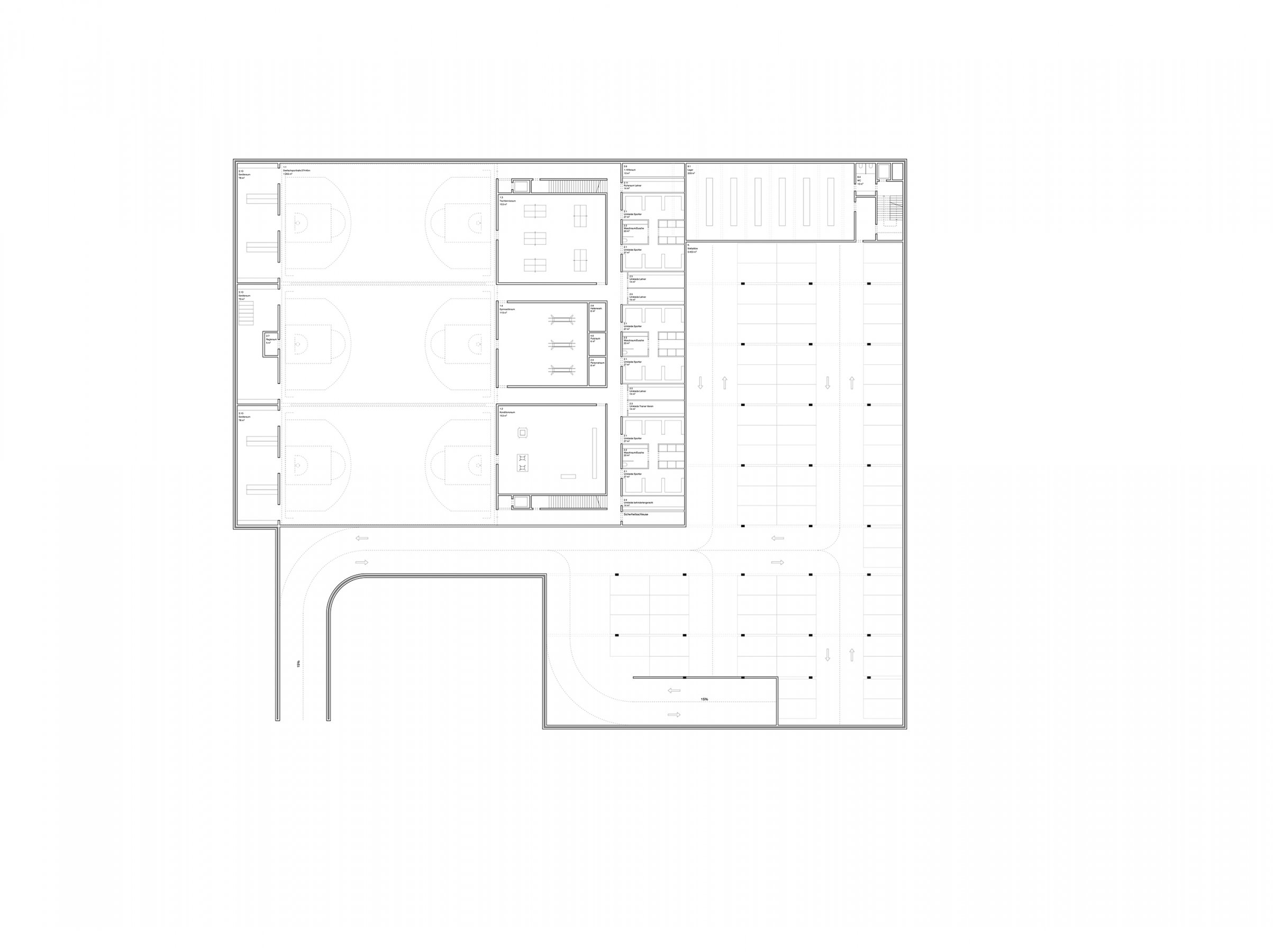
KuBiC Quarter Erlangen – sportshall and underground garage
Erlangen, Germany
Competition 2024
Architect:
Bruno Fioretti Marquez
Competition team:
Avital Greenshpon, Martina Penati, Laura Bertagno, Daniel Wölfel, Tobias Hoffmann, Alexander Fritsch
Visualisation:
Lion Schreiber, Gonzales Modellbau, Berlin, Germany
Landscape architect: Studio Vulkan, Landschaftsarchitektur, Munich, Germany
Structural engineering: Schnetzer Puskas Ingenieure, Berlin, Switzerland
Fire protection: Uwe Mönnikes, Berlin, Germany