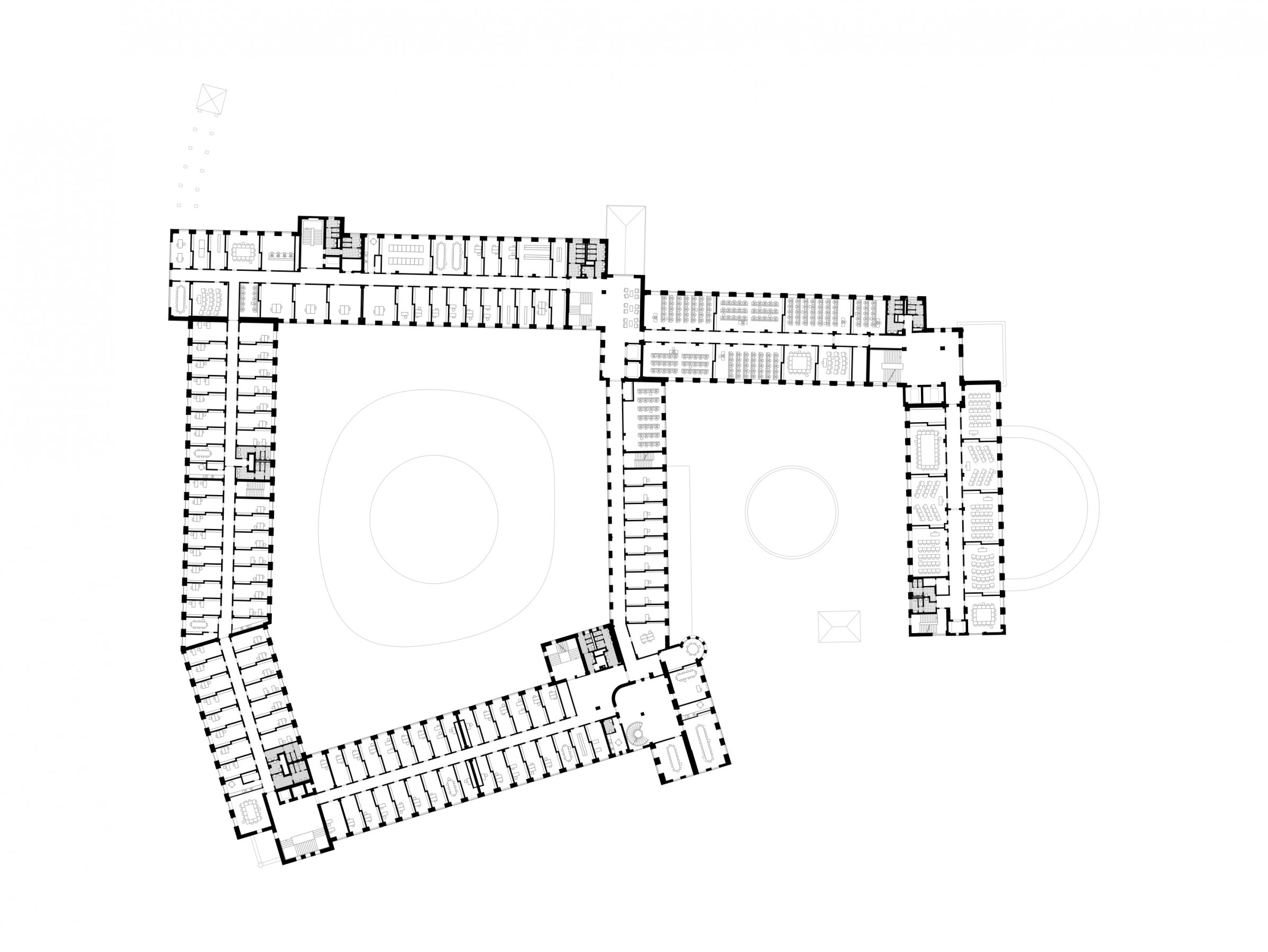
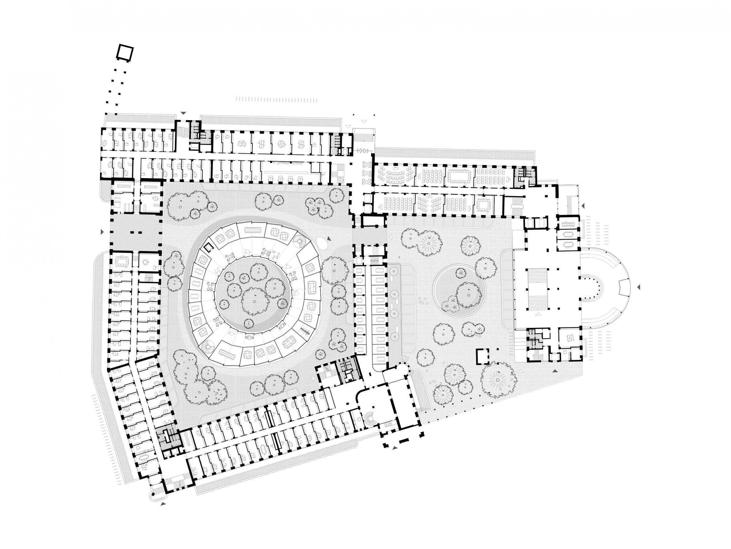
Himbeerpalast – Erweiterungsneubau, Umbau und Sanierung
Erlangen, Germany
Competition 2021, 2nd Prize
Architect:
Bruno Fioretti Marquez
Competition team:
Philipp Bütof, Kay Fischer, Avital Greenshpon, David Leinen, Gonçalo Filipe Leite, Aria Rodomonti, Sara Sagui, Simon Trapp
Landscape architect: Studio Vulkan Landschaftsarchitektur, München, Germany
Structural engineering: Schnetzer Puskas Ingenieure, Basel, Switzerland
Fire protection: Gruner GmbH, Berlin, Germany
Building services: Transsolar Energietechnik GmbH, Berlin, Germany