Extension Siegerlandmuseum Siegen

Read More Read Less
1/14
  • Extension Siegerlandmuseum perspective
  • Extension Siegerlandmuseum perspective outside
  • Extension Siegerlandmuseum perspective inside
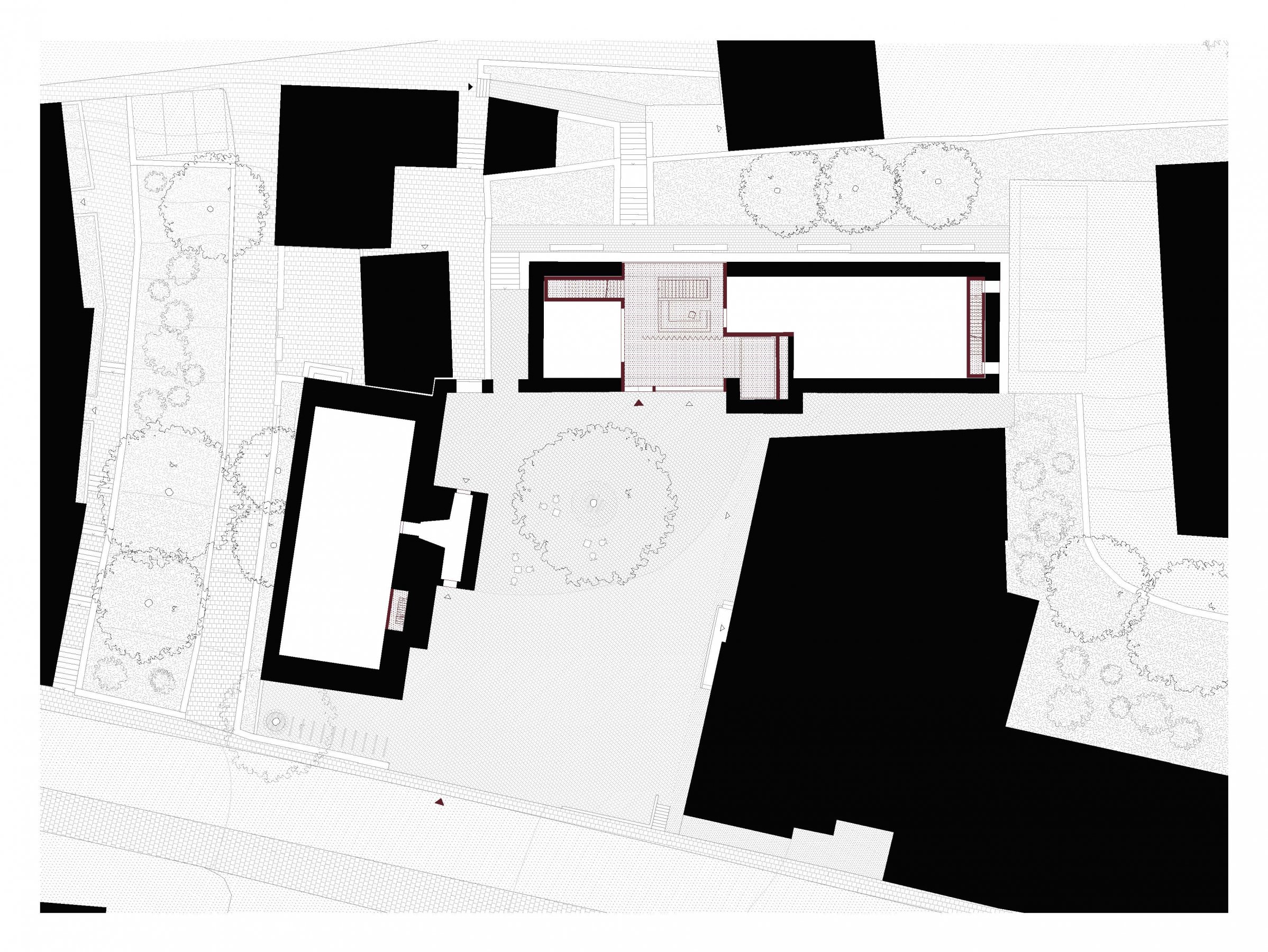
  • Site plan
  • Concept
  • Extension Siegerlandmuseum basement
    Basement
  • Extension Siegerlandmuseum ground floor
    Ground floor
  • Extension Siegerlandmuseum first floor
    First floor
  • Extension Siegerlandmuseum second floor
    Second floor
  • Extension Siegerlandmuseum Section A-A
    Section A-A
  • Extension Siegerlandmuseum Section B-B
    Section B-B
  • Extension Siegerlandmuseum Section C-C
    Section C-C
  • Extension Siegerlandmuseum elevation north
    Elevation north
  • Extension Siegerlandmuseum elevation south
    Elevation south