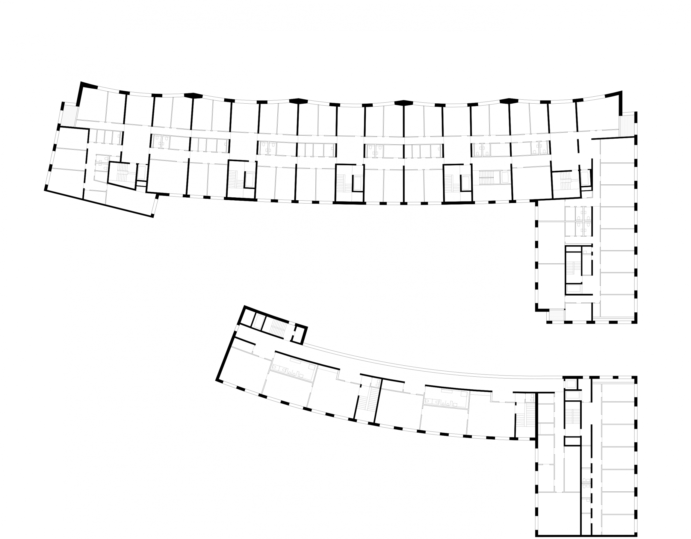
Residential and business complex Elisabethplatz
Munich, Germany
Competition 2017, realization 2017 -
Client:
Stadtsparkasse München
Architect:
Bruno Fioretti Marquez
Project directors:
Mark Wachendorfer
Project team:
Norman Beutel, Marlene Braun, Benedikt Breitenhuber, Ka-Shing Chui, Florent Le Corre, Jascha Fink, Julia Naomi Henning, Aria Rodomonti, Nico Schulz
Competition team:
Sergey Kolesov, Benedikt Breitenhuber, Simon Palme, Johannes Hackethal
Planning:
Structural engineering: IFB Frohloff Staffa Kühl Ecker PartGmbB, Berlin, Germany
Building physics: Müller BBM GmbH, Berlin, Germany
Building services: IWS Ingenieurbüro Wolff Stang GbR, Gröbenzell, Germany
Electrical engineering: Schuster Buchner Schmid GmbH & Co.KG, Hohenlinden, Germany
Landscape architect: capattistaubach Landschaftsarchitekten, Berlin, Germany
Consulting:
Fire protection: Sachverständigenbüro Arnhold, Weimar, Germany
Photography:
Simon Menges & Nino Tugushi, Berlin, Germany