Cultural Forum Martin-Luther-Platz Schweinfurt

Read More Read Less
1/16
  • Kulturforum Martin-Luther-Platz Schweinfurt
  • Kulturforum Schweinfurt, concept
    Expansion Martin-Luther-Platz
  • Kulturforum Schweinfurt, concept
    Supplementation
  • Kulturforum Schweinfurt, concept
    New courtyards
  • Kulturforum Schweinfurt, programme
    Programm
  • Kulturforum Schweinfurt, interior
    Foyer
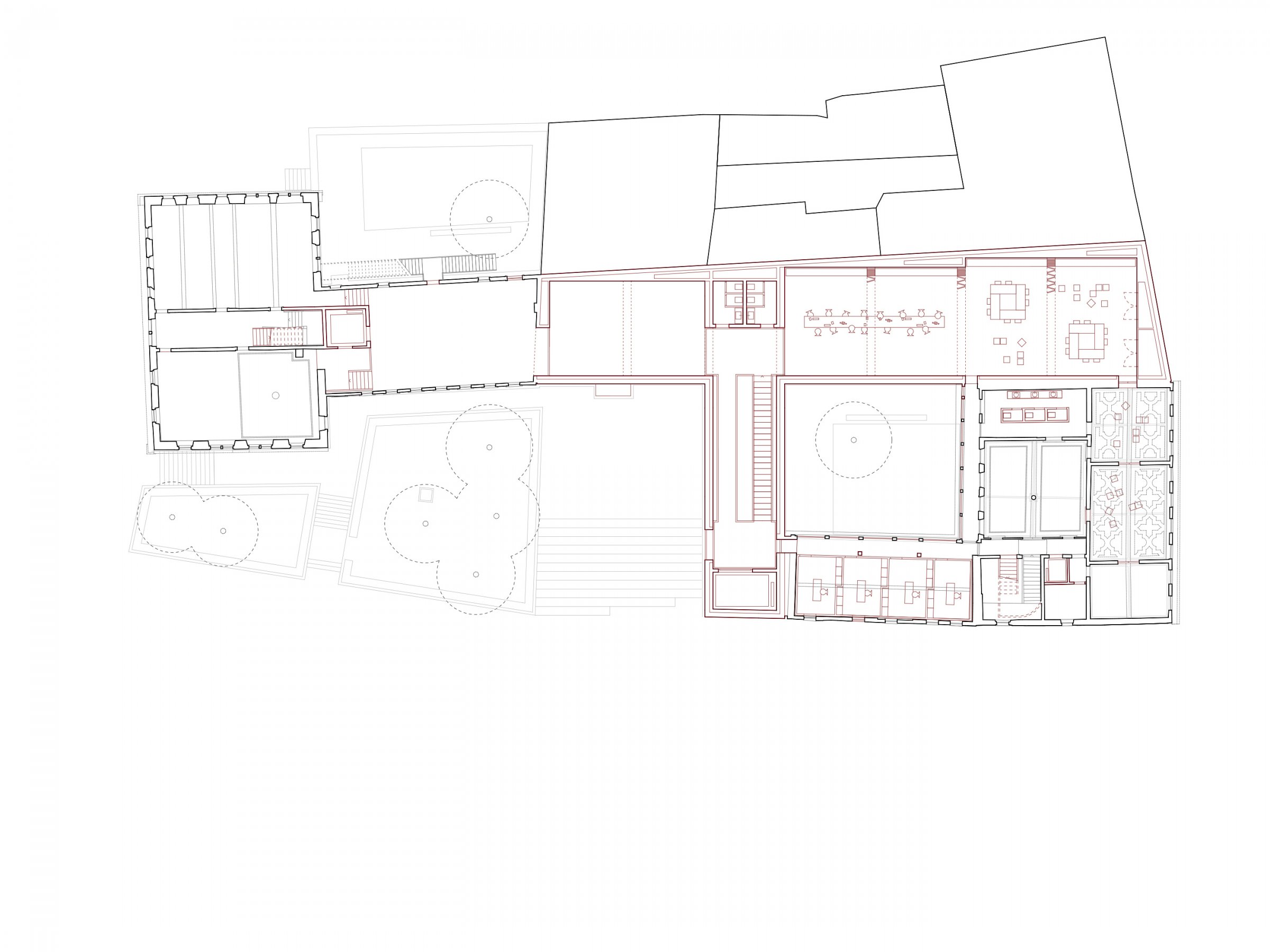
  • Kulturforum Martin-Luther-Platz Schweinfurt, ground floor
    Ground floor
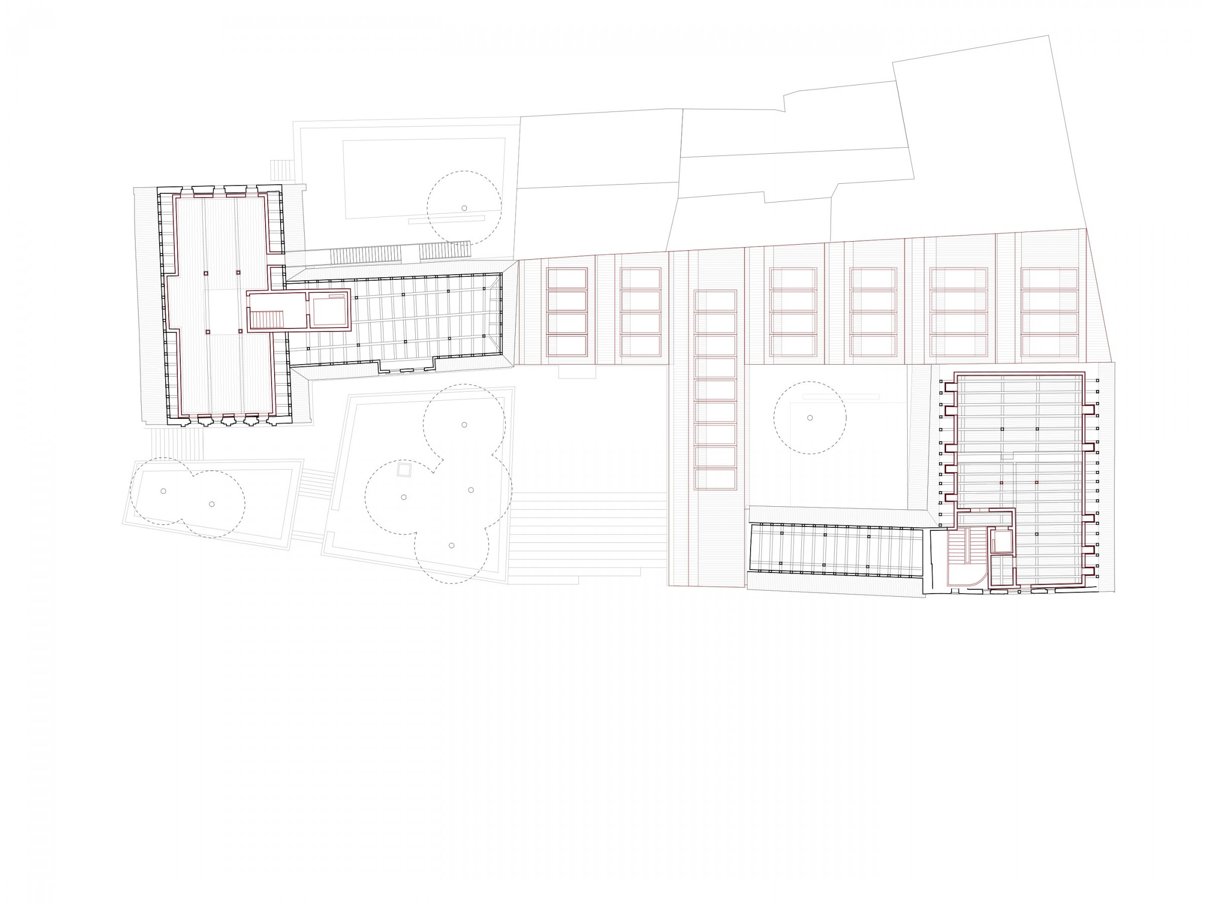
  • Kulturforum Martin-Luther-Platz Schweinfurt, first floor
    First floor
  • Kulturforum Martin-Luther-Platz Schweinfurt, attic floor
    Attic floor
  • Kulturforum Martin-Luther-Platz Schweinfurt, 1st basement
    First basement
  • Kulturforum Martin-Luther-Platz Schweinfurt, 2nd basement
    Second basement
  • Kulturforum Martin-Luther-Platz Schweinfurt, longitudinal section
    Longitudinal section
  • Kulturforum Martin-Luther-Platz Schweinfurt, longitudinal section
    cross section
  • Kulturforum Martin-Luther-Platz Schweinfurt, elevation south
    Elevation south
  • Kulturforum Martin-Luther-Platz Schweinfurt, Cross section
    Cross section entrance
  • Kulturforum Martin-Luther-Platz Schweinfurt, cross section
    Cross section