Conversion and extension Schloss Wittenberg

Read More Read Less
1/59
  • Wittenberg, 1537 - during this period Martin Luther had been in Wittenberg
  • Wittenberg Castle, 1611
  • Wittenberg during Seven Years War, 1760
  • Historical Cityplan, 1742
  • Floor plans, 1750
  • Conversion into a military building, 1815
  • Floor plans 19th century, the castle as a military building
  • The castle during the 19th century
  • Foto 1930
  • Courtyard 1930 and 1885
  • Masterplan
  • Siteplan
  • Concept: architecture as a palimpsest
  • Program: building equipment, reception, magazin, library, preacher seminar
  • Circulation: entrance church, cultural-historical tour, library, preacher seminar
  • Ground floor
  • Second floor
  • Attic floor
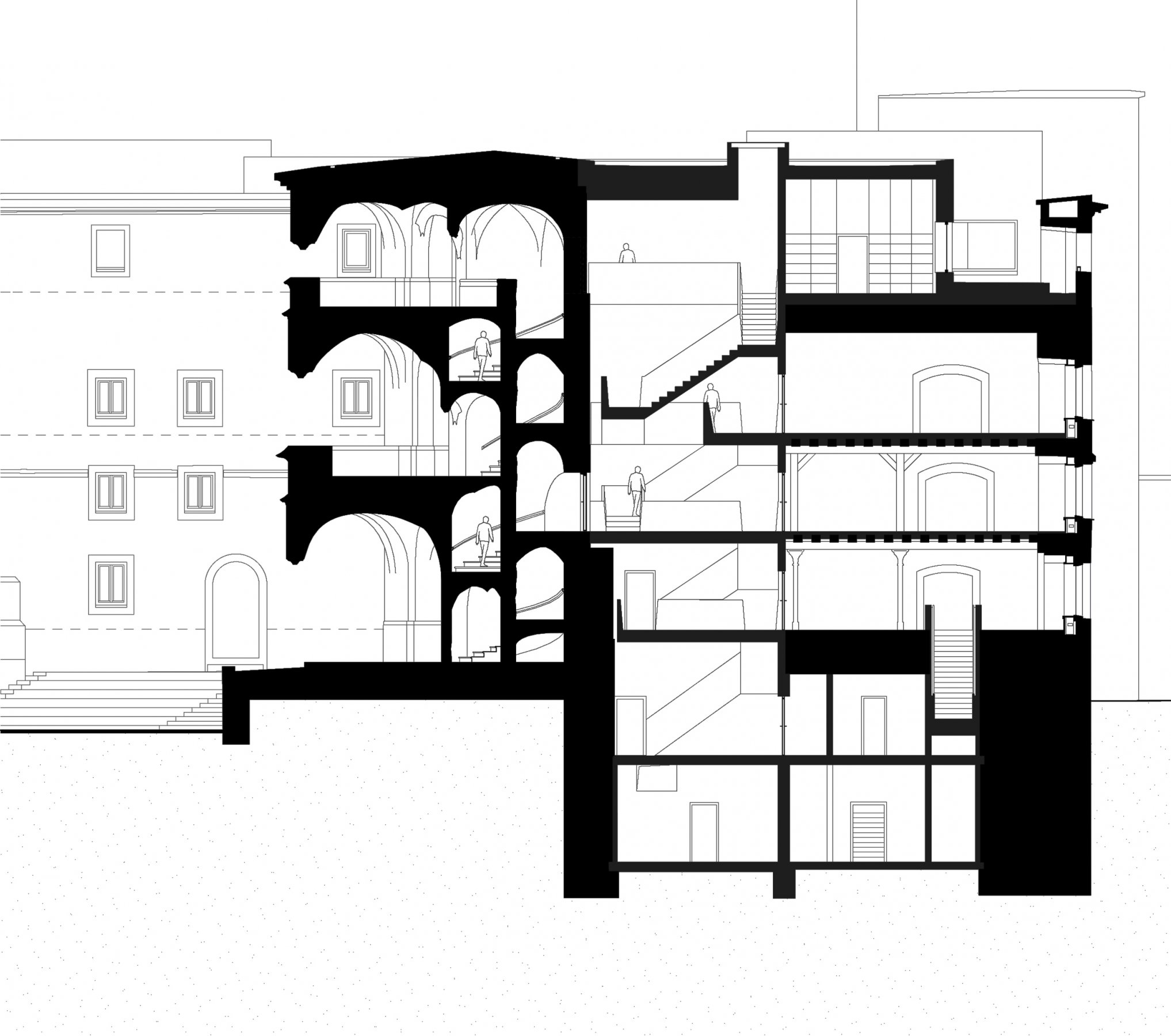
  • Longitudinal section
  • Cross section
  • Leonardo da Vinci: „A way of arousing the 'ingegno' to a variety of inventions"
  • Historical traces
  • The Courtyard of the Castle
  • Main entrance
  • New "historical" window in one of the living rooms of Friedrich III. (15th century)
  • Historic tower house
  • New staircases
  • Section historical and new staircase
  • Studies new staircases and final shape
  • Historic staircase
  • Old and new staircase
  • Ground floor - entrance church
  • Ground floor exhibition
  • Ground floor exhibition
  • Research library on the second floor
  • Antonella da Messina: St. Jerome in his study
  • Library
  • Library
  • Library
  • model - a cloister for the preacher on the top
  • Historical monastery in Wittenberg - transformation of a cloister
  • Model Castle - situation before extension and conversion
  • Roof top under construction
  • Roof top under construction
  • New attic floor with patios
  • Studies skylight
  • Skylight winter church
  • Study daylight