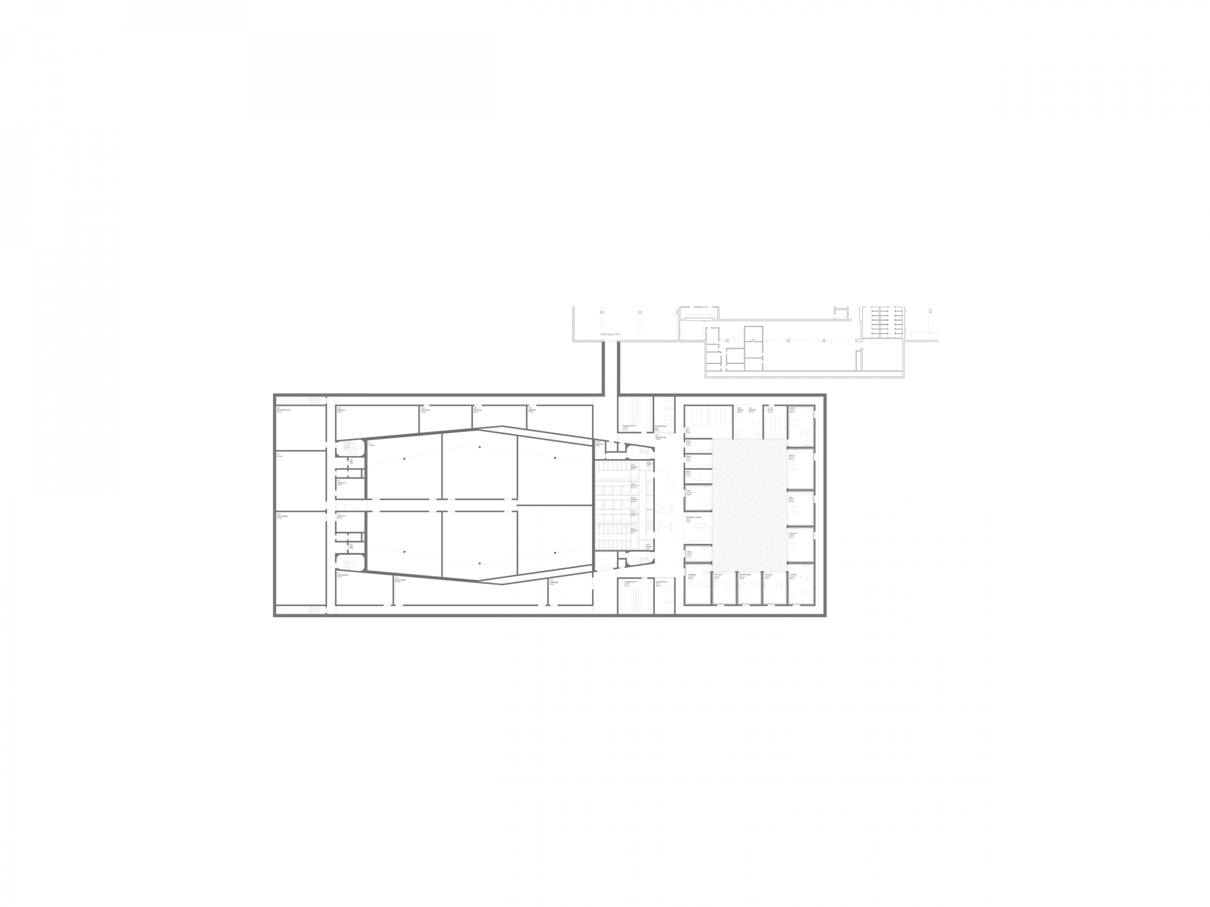
Concert Hall Nuremberg
Nuremberg, Germany
Competition 2018, 4th Prize
Client:
Stadt Nürnberg
Architect:
Bruno Fioretti Marquez
Competition Team:
Gabriele Gagliardi, Giulia Tönz, Johannes Hackethal, Julius Schmidt-Barbo, Luca Romano, Paul Harries, Simon Palme
Landscape Architect: Levin Monsigny Landschaftsarchitekten GmbH, Berlin, Germany
Acoustical Engineering: Stefan Weinzierl & Müller-BBM, Berlin, Germany
Fire Protection: Müller-BBM, Berlin, Germany
Structural Engineering: Bollinger + Grohmann Ingenieure, Berlin, Germany
Visualization:
Filippo Bolognese Images, Switzerland