College of Civic Service in Bavaria

Read More Read Less
1/12
  • bfm KRO Hochschule für Finanzwesen Kronach
  • bfm KRO Hochschule für Finanzwesen Eingang Zimmer
  • bfm KRO Hochschule für Finanzwesen Wohnung
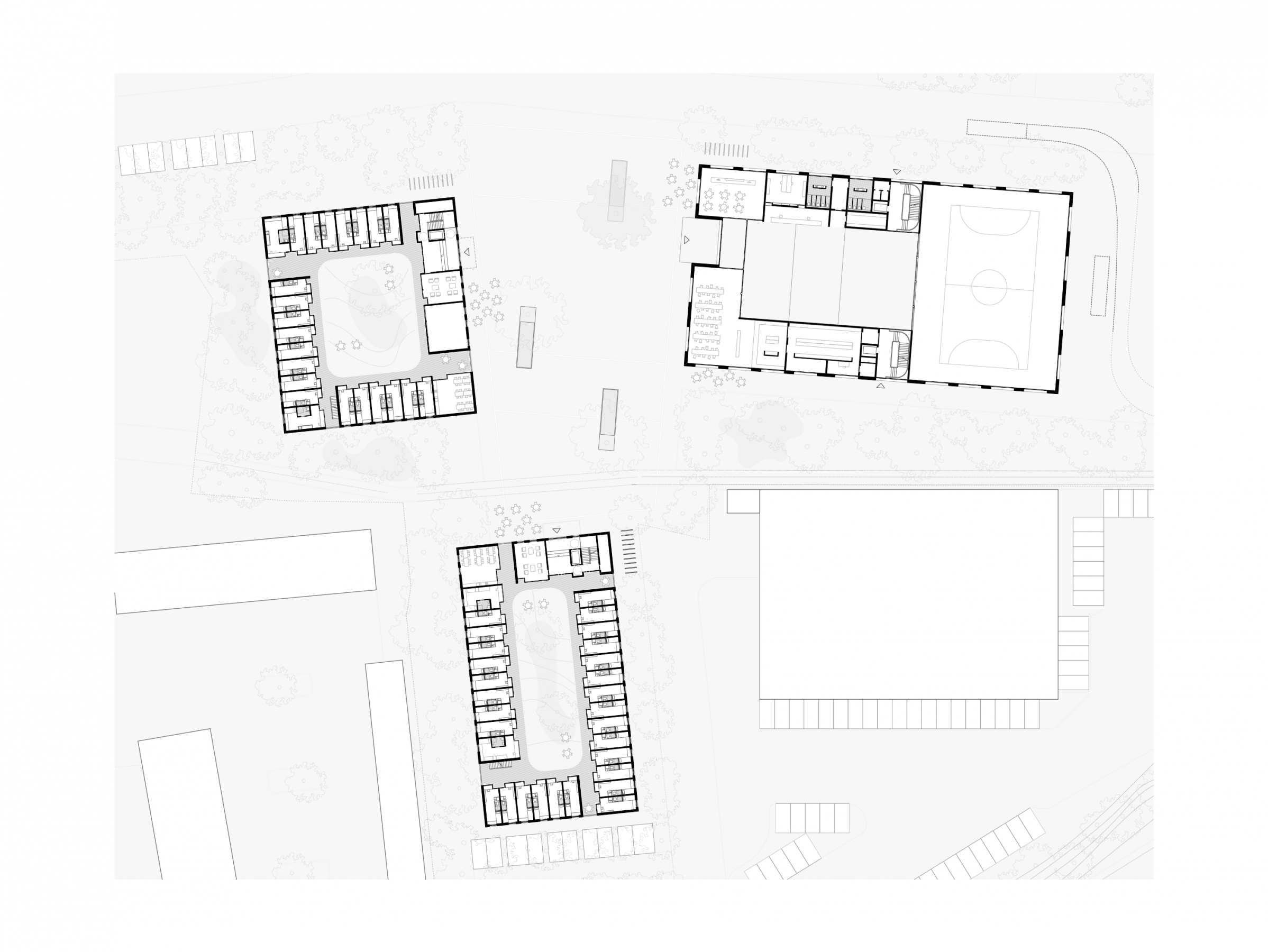
  • bfm KRO Hochschule für Finanzwesen siteplan
  • bfm KRO Hochschule für Finanzwesen EG
    ground floor
  • bfm KRO Hochschule für Finanzwesen 1OG
    first floor
  • bfm KRO Hochschule für Finanzwesen 2OG
    second floor
  • bfm KRO Hochschule für Finanzwesen basement
    basement
  • bfm KRO Hochschule für Finanzwesen Ansicht
  • bfm KRO Hochschule für Finanzwesen section BB
    section
  • bfm KRO Hochschule für Finanzwesen section
    section
  • bfm KRO Hochschule für Finanzwesen Eingang Zimmer section AA
    section