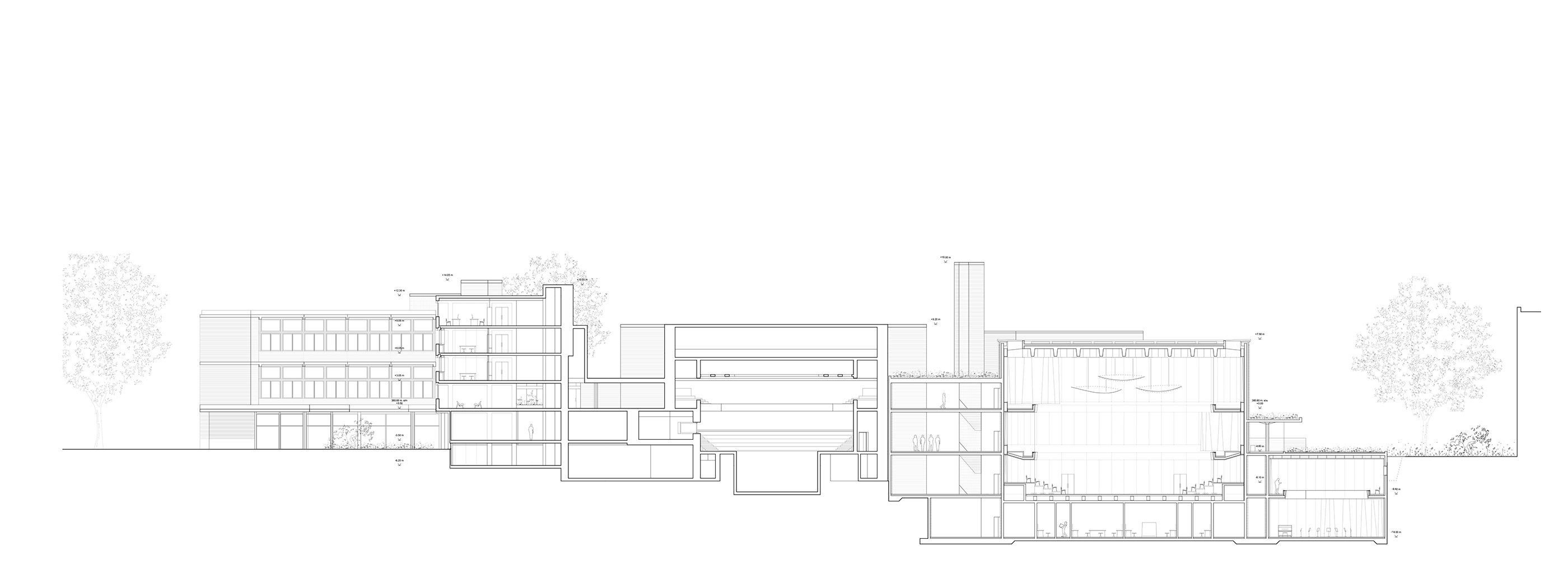
Città della Musica
Lugano, Switzerland
Competition 2023
Client:
Conservatorio della Svizzera Italiana
Architect:
Bruno Fioretti Marquez
Competition Team:
David Arango, Avital Greenshpon, Johannes Medebach, Johannes Mirwald, Martina Penati, Costantino da Pieve
Landscape architecture: Studio Erde, Berlin, Germany
Architecture: Studio d’architettura Piero Conconi, Lugano, Switzerland
Structural engineering: Lurati Muttoni Partner SA, Mendrisio, Switzerland
Acoustic: Kahle Acoustics, Bruxelles, Belgium
Building services: Elettroconsulenze Solca SA, Mendrisio, Switzerland
Building services: Poggio Engineering SA, Bioggio, Switzerland
Civil engineering: Andrea Roscetti, Lugano, Switzerland
Fire protection: Della Sicurezza di Fabio della Casa, Agno, Switzerland
Visualization:
Sara Sagui