Center for Philology and Digitality Würzburg

Read More Read Less
1/10
  • Zemtrum für Philologie und Digitalität, site plan
  • Zentrum für Philologie und Digitalität, concept
    Communication area
  • Zentrum für Philologie und Digitalität, concept
    Structural concept
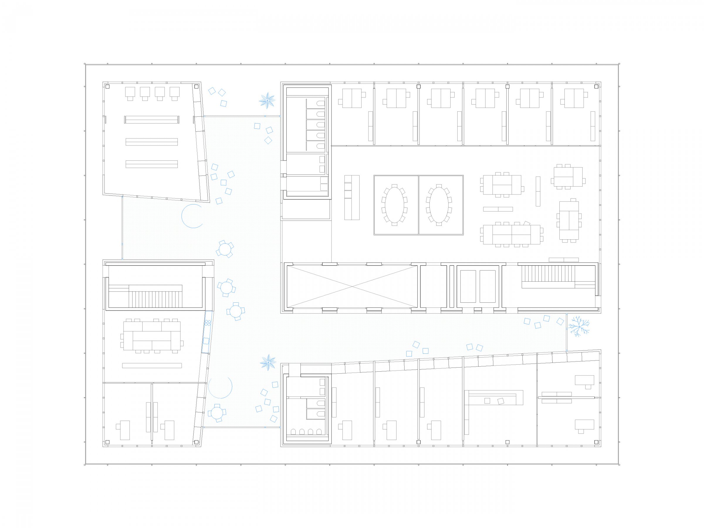
  • Zentrum für Philologie und Digitalität, ground floor
    Ground floor
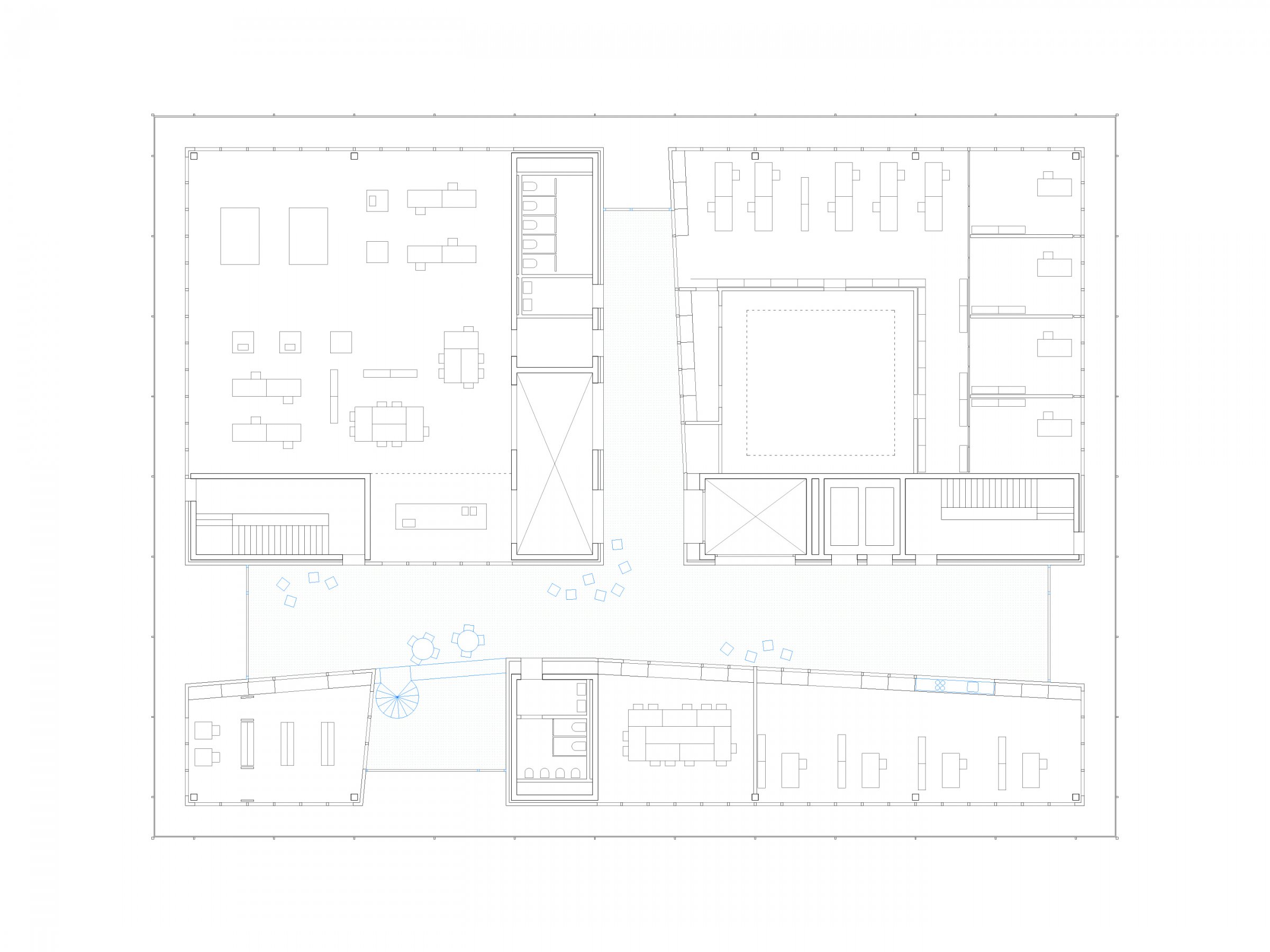
  • Zentrum für Philologie und Digitalität, first floor
    First floor
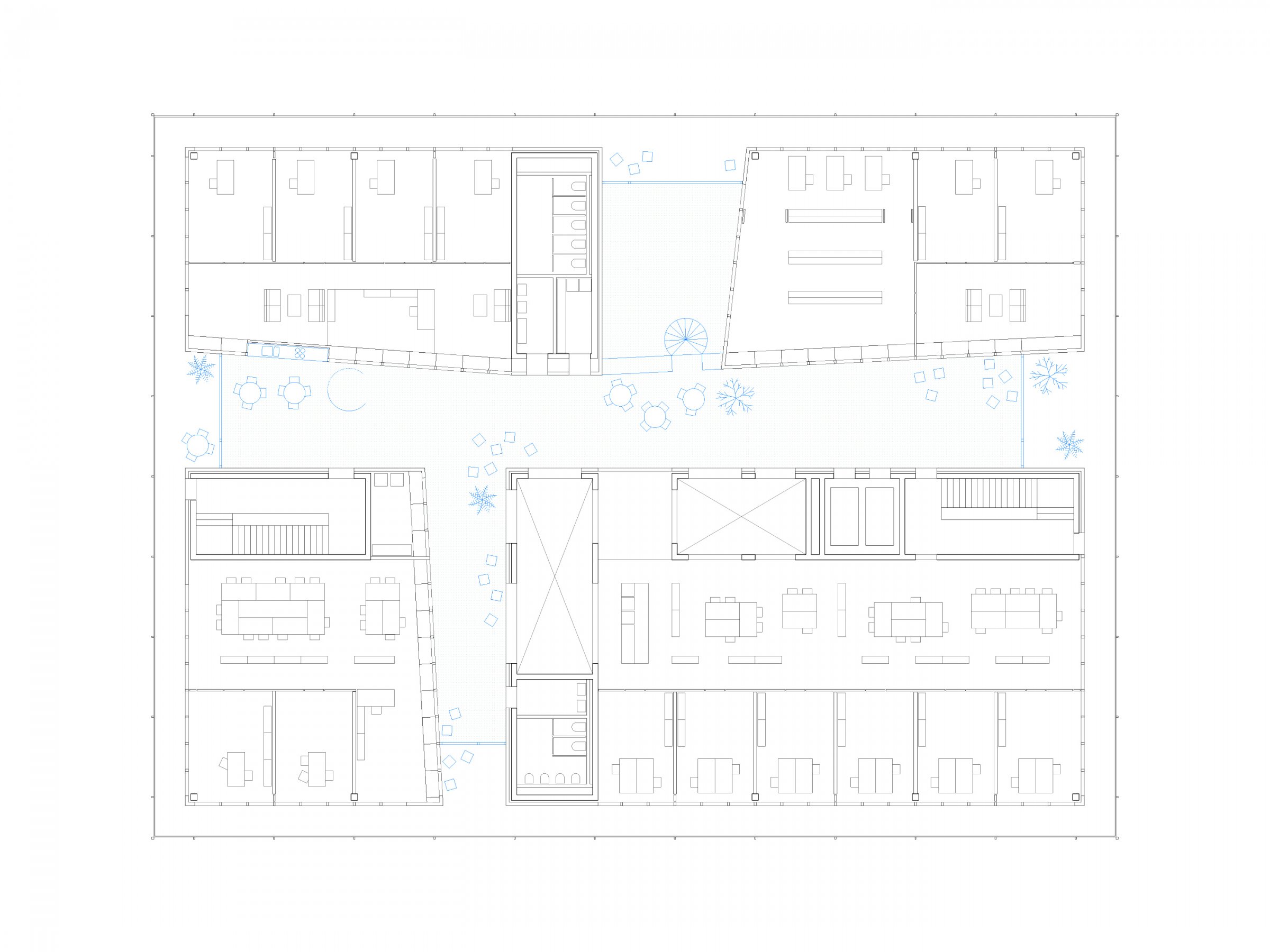
  • Zentrum für Philologie und Digitalität, second floor
    Second floor
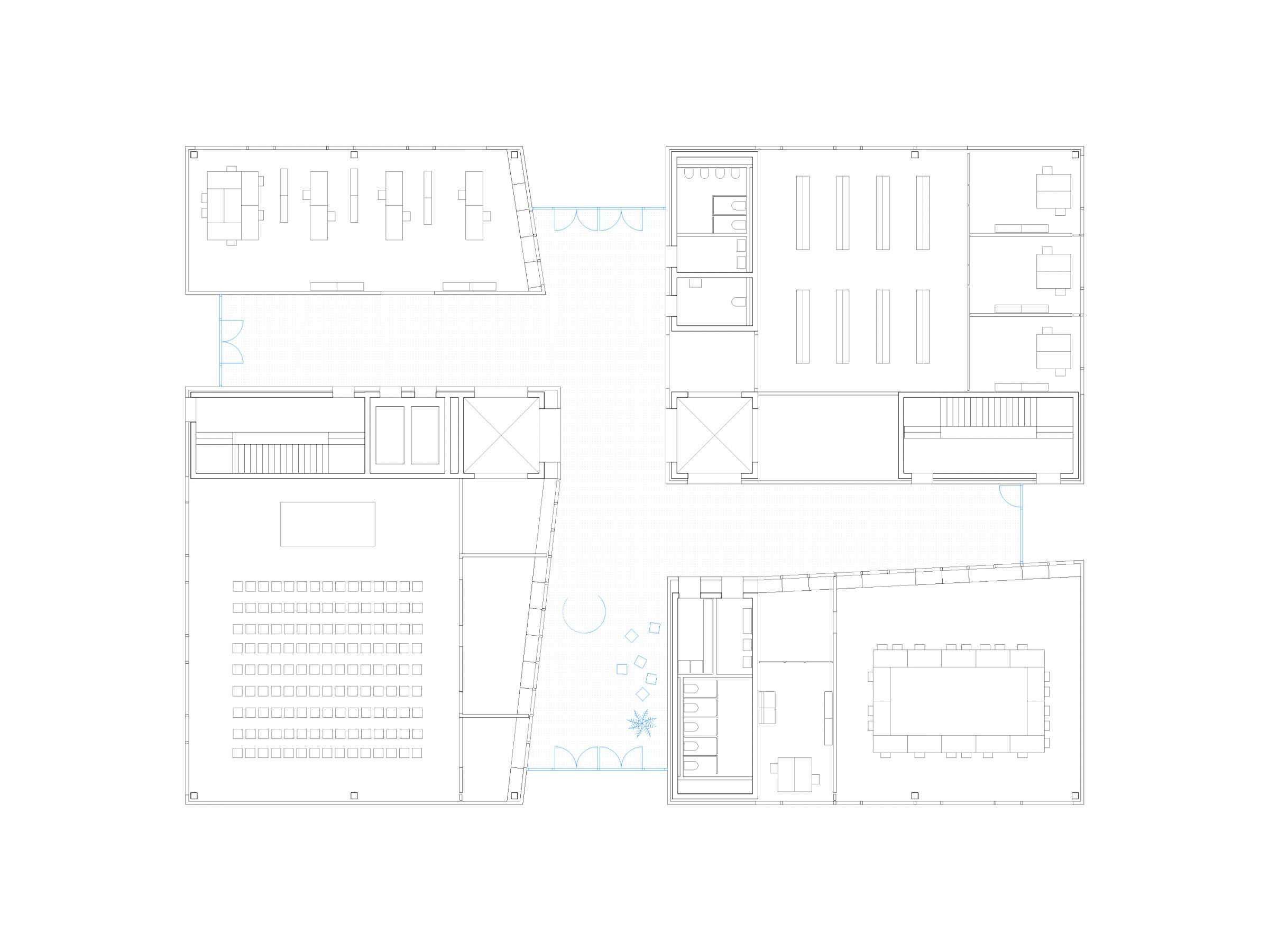
  • Zentrum für Philologie und Digitalität, third floor
    Third floor
  • Zentrum für Philologie und Digitalität, elevation west
    Elevation west
  • Zentrum für Philologie und Digitalität, Longitudinal section
    Longitudinal section
  • Zentrum für Philologie und Digitalität, cross section
    Cross section