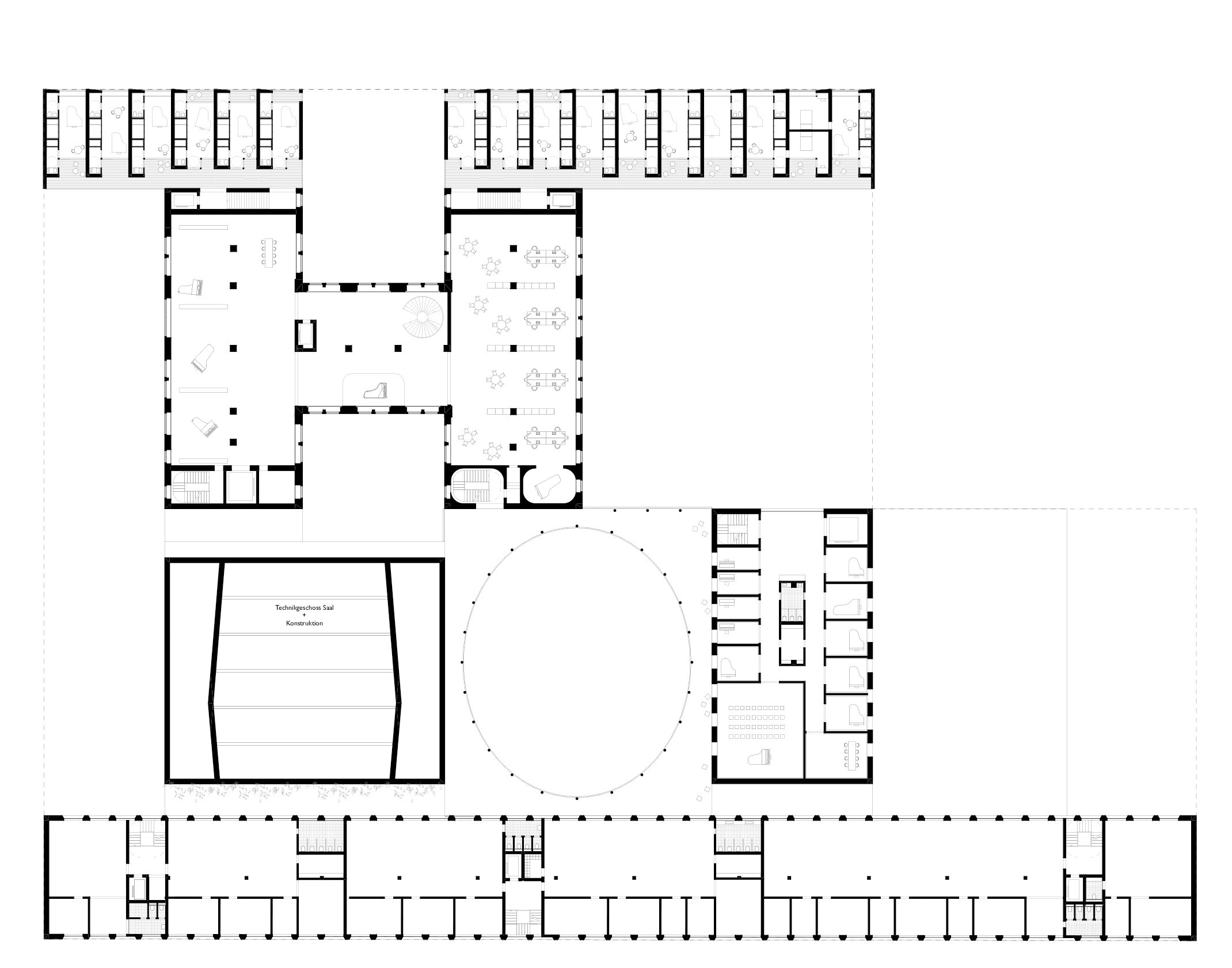
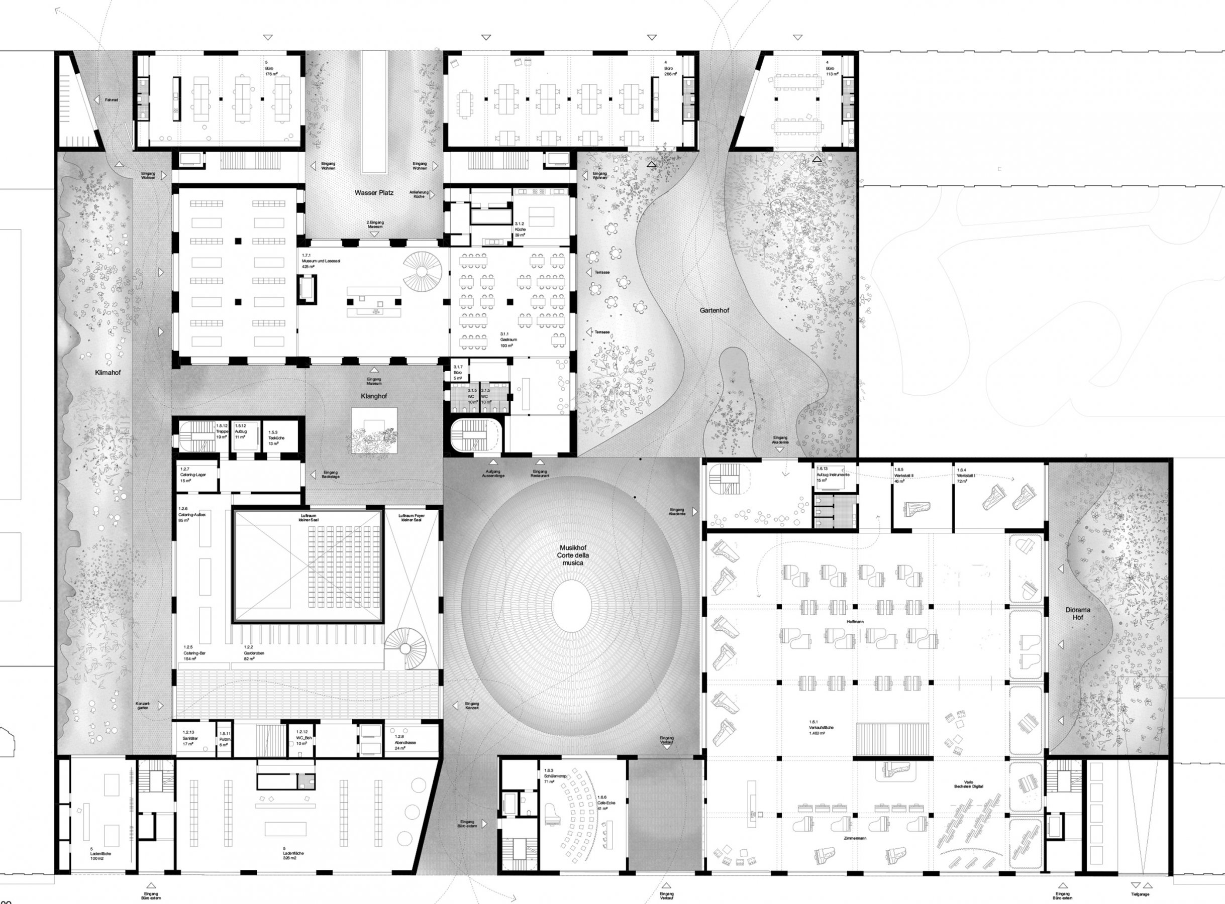
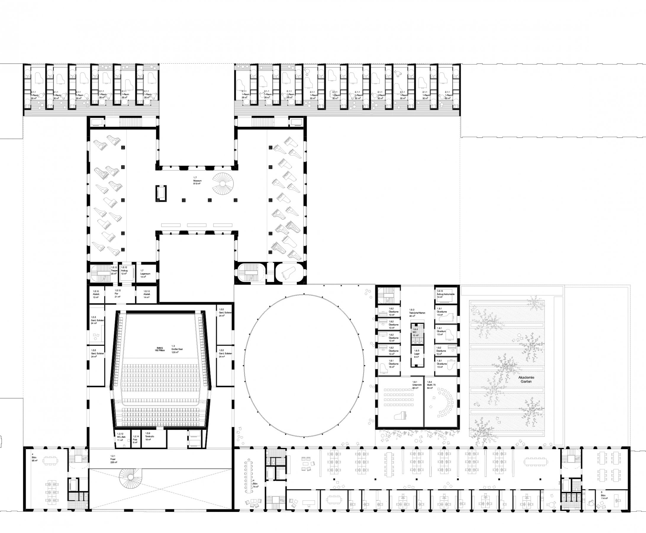
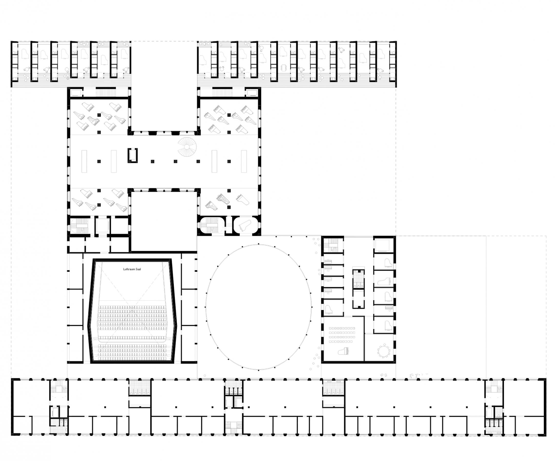
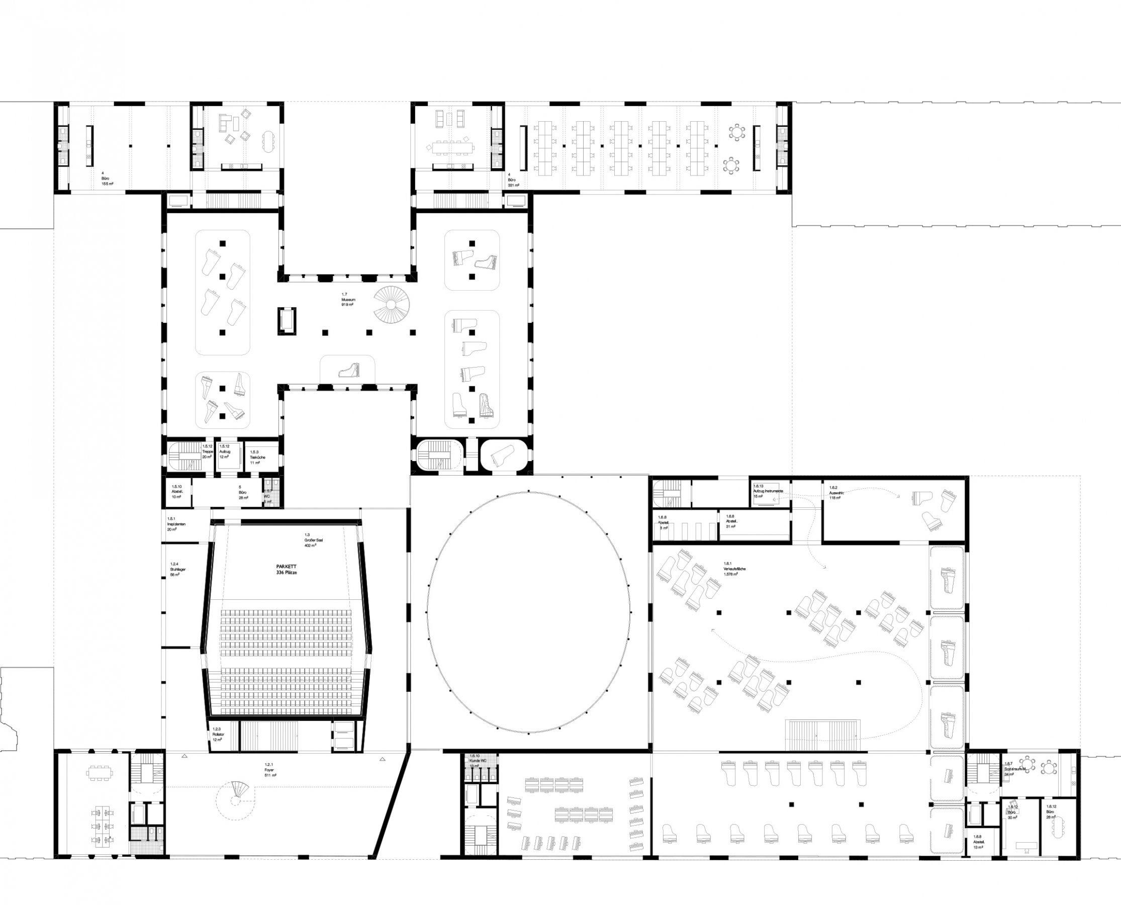
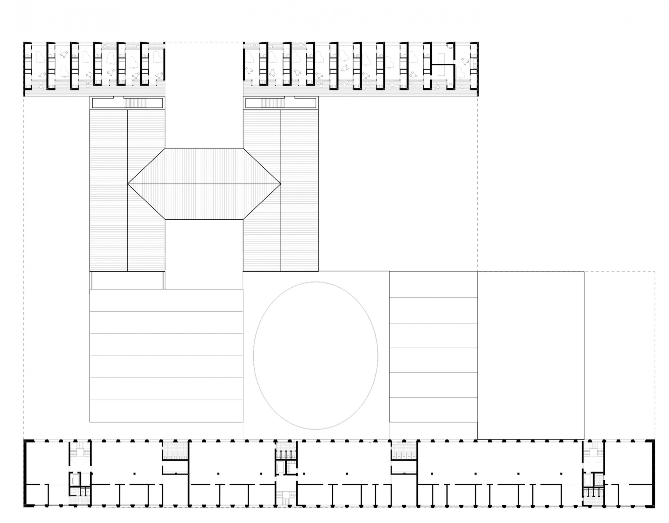
Carl Bechstein Campus
Berlin, Germany
Competition 2023
Architect:
Bruno Fioretti Marquez and Gruppe 030
Competition team:
Benedikt Breitenhuber, Franziska Käuferle, Sergey Kolesov, Lion Schreiber, Sara Sagui, Casimir Meier, Johannes Mirwald
Landscape architect: Studio Erde Landschaftsarchitektur, Berlin, Germany
Structural engineering: Schnetzer Puskas Ingenieure, Berlin, Switzerland
Fire protection: Uwe Mönnikes, Berlin, Germany
Building services & physics: Transsolar Energietechnik GmbH, Stuttgart, Germany
Acoustic: Kahle Acoustics SRL, Brussels, Belgium