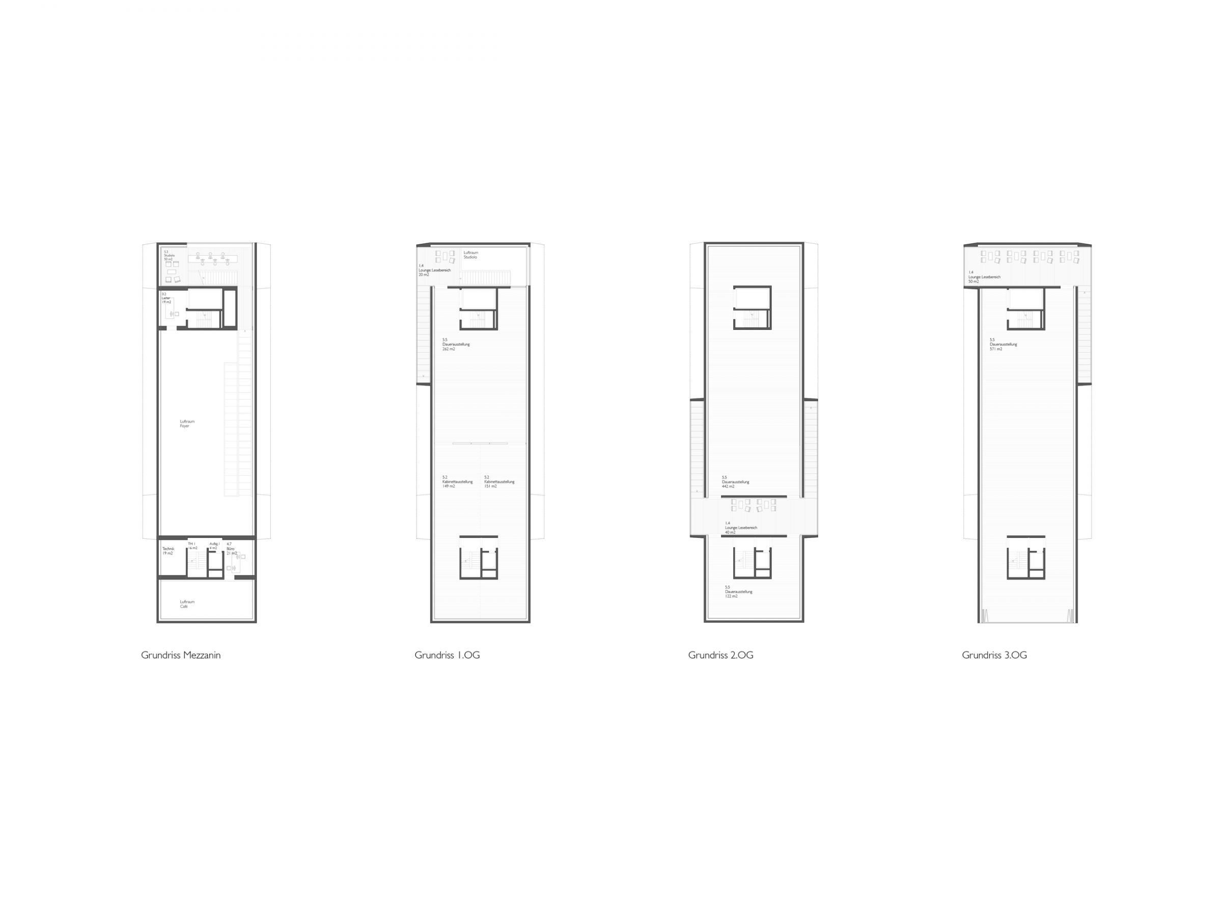
Bauhaus-Archiv Museum für Gestaltung Berlin
Berlin, Germany
Competition 2015, 2nd Prize
Client:
Land Berlin
Architect:
Bruno Fioretti Marquez
Competition Team:
Benedikt Breitenhuber, Francisco Javier Moreno García, Gloria Moreno Merlo, Lion Schreiber, Silvia Possamai, Mateo Vianello
Building Services: HL-Technik Engineering Partner GmbH, Munich, Germany
Structural Engineering: ifb frohloff staffa kühl ecker, Berlin, Germany
Visualization:
PONNIE Images, Aachen, Germany